Maison neuve à
Chaumont-en-Vexin
(60240) Référence :
AM2412298_1
Prix du projet : Maison avec Terrain
prix 265 000 €
- 6 pièces
- 4 chambres
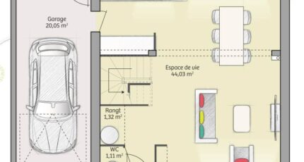
- Surface maison 91 m2
VENTE : maison de 6 pièces (91 m²) à Chaumont-en-Vexin
PROCHE DE CERGY - MAISON 6 PIÈCES NEUVE
À vendre : à 700 m du Transilien J (1 h de Paris), à Chaumont-en-Vexin (60240), notre agence Maisons Balency Saint-Maur-des-Fossés est heureuse de vous proposer cette maison de 6 pièces de 91 m² et de 745 m² de terrain. Son intérieur se divise en quatre chambres, une cuisine et une salle de bains.
Il s'agit d'une maison de 2 niveaux. Elle est neuve.
Il y a l'École Maternelle Roger Blondeau, l'École Élémentaire Roger Blondeau et le Collège Saint-Exupéry à moins de 10 minutes à pied. Niveau transports en commun, on trouve la gare Chaumont-en-Vexin dans les alentours. La nationale N31 est accessible à 17 km et Cergy est située à 29 km. Il y a quatre commerces, une boulangerie, deux supermarchés, un bureau de poste et une boucherie-charcuterie à quelques minutes du logement.
Elle est à vendre pour la somme de 265 000 €.
Contactez Aurelien MONTANIER (tél : 06-24-66-88-34) pour obtenir de plus amples renseignements sur cette maison, sur les modalités de vente ou sur les démarches à suivre. Faites de vos projets immobiliers une réalité avec Maisons Balency Saint-Maur-des-Fossés.
Annonce proposée par un Agent Commercial Partenaire.
Mentions légales
Terrain proposé par un partenaire foncier selon disponibilités et autorisation de publicité au prix de 85 000 €. Hors droit d'enregistrement et frais de notaire. Terrain + Maison proposés au prix de 265 000 € (Hors branchements et raccordements, papiers peints, peintures, revêtement de sol dans les chambres. Tarif modifiable sans préavis). Etiquette énergie : A. Différents modèles disponibles pour ce terrain. Assurances et garanties du constructeur (RC professionnelle, décennale, dommage ouvrage, garantie de remboursement de l'acompte, livraison à prix et délai convenu) : https://www.maisons-balency.fr/informations-legales/. HEXAOM Services est enregistré auprès de l'ORIAS en tant que Courtier en financement, Niveau 1, sous le numéro 14001345.Agence Maisons Balency de Saint-Maur-des-Fossés (94100)
- Téléphone :
- 01 87 36 85 37
- Adressse :
- 12 avenue de la république
94100 Saint-Maur-des-Fossés, France
