Maison neuve à
Claville (27180) Référence : FG2461523_2

Prix du projet : Maison avec Terrain

prix 369 900 €

  • 4 pièces
  • 3 chambres
  • Surface maison 120 m2

VENTE : maison T4 (120 m²) à Claville
EMPLACEMENT PRIVILÉGIÉ - MAISON 4 PIÈCES NEUVE
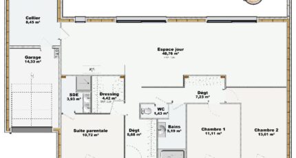
À vendre à 9 km d'Évreux, nous sommes ravis de vous présenter cette maison de 4 pièces de plain-pied de 120 m² et de 1 000 m² de terrain, bénéficiant d'un emplacement d'exception dans Claville (27180). Conçue de plain-pied, elle offre trois chambres dont une belle suite parentale, une cuisine ouverte sur l'espace de vie , deux salles de bains un cellier donnant sur le garage .
Cette maison est neuve.
La maison se trouve dans un quartier attractif. Une école primaire y est implantée.

Son prix de vente est de 369 900 €.
Prenez contact avec notre agence (Fanny GATINAULT : 06-34-03-24-37) pour obtenir de plus amples renseignements sur la maison, sur les démarches à suivre ou sur les modalités de vente.

Annonce proposée par un Agent Commercial Partenaire.

Mentions légales

Terrain proposé par un partenaire foncier selon disponibilités et autorisation de publicité au prix de 63 000 €. Hors droit d'enregistrement et frais de notaire. Terrain + Maison proposés au prix de 369 900 € (Hors branchements et raccordements, papiers peints, peintures, revêtement de sol dans les chambres. Tarif modifiable sans préavis). Etiquette énergie : A. Différents modèles disponibles pour ce terrain. Assurances et garanties du constructeur (RC professionnelle, décennale, dommage ouvrage, garantie de remboursement de l'acompte, livraison à prix et délai convenu) : https://www.maisons-balency.fr/informations-legales/. HEXAOM Services est enregistré auprès de l'ORIAS en tant que Courtier en financement, Niveau 1, sous le numéro 14001345.

Contactez l'agence de Louviers

02 32 51 43 53

    * Champs obligatoires

    Vos informations sont traitées par HEXAOM et transmises à un conseiller commercial qui vous contactera afin de répondre à votre demande. Les plans et images présentés sur notre site sont la propriété d’HEXAOM et ne peuvent pas être reproduits sans son accord. Pour retrouver notre politique de protection des données personnelles et exercer vos droits conformément à la « loi informatique et liberté » cliquez-ici.