Maison neuve à
Combaillaux
(34980) Référence :
JYB2419284_1
Prix du projet : Maison avec Terrain
prix 445 700 €
- 5 pièces
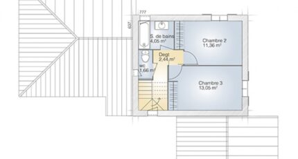
- 3 chambres
- Surface maison 105 m2
VENTE : maison F5 (105 m²) à Combaillaux
EMPLACEMENT PRIVILÉGIÉ - MAISON 5 PIÈCES NEUVE
En vente à 24 km de la mer Méditerranée et à deux pas de Montpellier, nous vous proposons cette maison de 5 pièces de 105 m² sans vis-à-vis bénéficiant d'un emplacement d'exception dans Combaillaux (34980).
C'est une maison de 2 niveaux. Son intérieur est composé de trois chambres, d'une cuisine et d'une salle de bains. La maison est neuve.
Le terrain du bien est de 313 m².
La propriété se trouve dans un quartier attractif. Il y a l'École Maternelle les Arbousiers et l'École Élémentaire les Cigales à moins de 10 minutes à pied. L'autoroute A750 et la nationale N109 sont accessibles à moins de 7 km. On trouve un tennis, une boulangerie et un commerce dans les environs.
Son prix de vente est de 445 700 €.
Contactez Jean-Yves BARBAGLIA (tél : 06-71-64-52-11) pour plus de renseignements sur la maison, sur les modalités de vente ou sur les démarches à suivre. Maisons Balency Castries vous accompagne à toutes les étapes de votre projet et dans tous vos projets immobiliers.
Mentions légales
Terrain proposé par un partenaire foncier selon disponibilités et autorisation de publicité au prix de 220 000 €. Hors droit d'enregistrement et frais de notaire. Terrain + Maison proposés au prix de 445 700 € (Hors branchements et raccordements, papiers peints, peintures, revêtement de sol dans les chambres. Tarif modifiable sans préavis). Etiquette énergie : A. Différents modèles disponibles pour ce terrain. Assurances et garanties du constructeur (RC professionnelle, décennale, dommage ouvrage, garantie de remboursement de l'acompte, livraison à prix et délai convenu) : https://www.maisons-balency.fr/informations-legales/. HEXAOM Services est enregistré auprès de l'ORIAS en tant que Courtier en financement, Niveau 1, sous le numéro 14001345.Agence Maisons Balency de Castries (34160)
- Téléphone :
- 04 99 62 92 10
- Adressse :
- 138, avenue de la Royale
34160 Castries, France
