Maison neuve à
Compiègne (60200) Référence : AF2316825_1

Prix du projet : Maison avec Terrain

prix 420 000 €

  • 7 pièces
  • 4 chambres
  • Surface maison 160 m2

Compiègne : maison de 7 pièces (160 m²) à vendre
MAISON 7 PIÈCES NEUVE
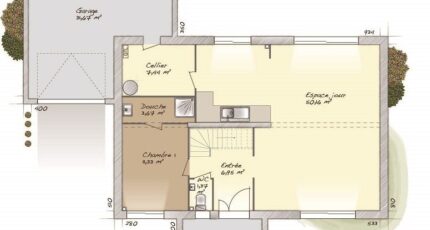
Nous sommes ravis de vous proposer cette maison de 7 pièces de 160 m² et de 500 m² de terrain à Compiègne (60200).
Il s'agit d'une maison de 2 niveaux. Elle se divise en quatre chambres, une cuisine et deux salles de bains. La maison est neuve.
Des établissements scolaires du primaire et du secondaire sont implantés à moins de 10 minutes à pied, tout comme quatre structures d'accueil pour les enfants en bas âge. Niveau transports en commun, il y a la gare Compiègne à quelques pas de la maison. L'autoroute A1 et la nationale N31 sont accessibles à moins de 10 km. On trouve un port de plaisance, des commerces, des boulangeries, deux supermarchés, des épiceries et une poissonnerie à quelques minutes à peine. Le marché Place du Change anime le quartier.
Elle est proposée à l'achat pour 420 000 €.
Contactez notre agence (Antoine FLIPPE : 07-82-59-37-75) pour obtenir de plus amples informations sur cette maison, sur les démarches à suivre ou sur les modalités de vente. Maisons Balency Baillet-en-France vous accompagne dans tous vos projets immobiliers et à toutes les étapes de votre projet.

Annonce proposée par un Agent Commercial Partenaire.

Mentions légales

Terrain proposé par un partenaire foncier selon disponibilités et autorisation de publicité au prix de 90 000 €. Hors droit d'enregistrement et frais de notaire. Maison proposée, avec un contrat de construction de maison individuelle, dans le cadre de la loi du 19/12/1990, au prix de 330 000 € (Hors branchements et raccordements, papiers peints, peintures, revêtement de sol dans les chambres, qui sont chiffrés dans les travaux qui restent à charge du client. Tarif modifiable sans préavis). Étiquette énergie : A. Différents modèles disponibles pour ce terrain. Assurances et garanties du constructeur comprises (RC professionnelle, décennale, dommage ouvrage).

Contactez l'agence de Baillet-en-France

01 34 46 05 23

    * Champs obligatoires

    Vos informations sont traitées par HEXAOM et transmises à un conseiller commercial qui vous contactera afin de répondre à votre demande. Les plans et images présentés sur notre site sont la propriété d’HEXAOM et ne peuvent pas être reproduits sans son accord. Pour retrouver notre politique de protection des données personnelles et exercer vos droits conformément à la « loi informatique et liberté » cliquez-ici.