Maison neuve à
Compiègne
(60200) Référence :
AF2316825_3
Prix du projet : Maison avec Terrain
prix 315 000 €
- 6 pièces
- 4 chambres
- Surface maison 117 m2
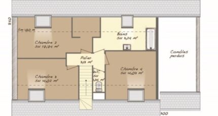
Maison de 6 pièces (117 m²) en vente à Compiègne
MAISON 6 PIÈCES NEUVE
Nous vous proposons en vente à Compiègne (60200), cette maison de 6 pièces de plain-pied de 117 m². Son intérieur dispose de quatre chambres, d'une cuisine et de deux salles de bains.
Le terrain de cette maison est de 500 m².
Cette maison est neuve.
Des écoles du primaire et du secondaire sont implantées à moins de 10 minutes à pied, tout comme quatre structures d'accueil pour les tout-petits. Niveau transports en commun, il y a la gare Compiègne dans un rayon de 1 km. L'autoroute A1 et la nationale N31 sont accessibles à moins de 10 km. On trouve un port de plaisance, des commerces, des boulangeries, deux supermarchés, une poissonnerie et un bureau de poste à quelques minutes à peine. Le marché Place du Change anime les environs.
Elle est à vendre pour la somme de 315 000 €.
N'hésitez pas à prendre contact avec notre agence (FLIPPE Antoine : 07-82-59-37-75) pour toute information sur la propriété, sur les démarches à suivre ou sur les modalités de vente.
Annonce proposée par un Agent Commercial Partenaire.
Mentions légales
Terrain proposé par un partenaire foncier selon disponibilités et autorisation de publicité au prix de 90 000 €. Hors droit d'enregistrement et frais de notaire. Maison proposée, avec un contrat de construction de maison individuelle, dans le cadre de la loi du 19/12/1990, au prix de 225 000 € (Hors branchements et raccordements, papiers peints, peintures, revêtement de sol dans les chambres, qui sont chiffrés dans les travaux qui restent à charge du client. Tarif modifiable sans préavis). Étiquette énergie : A. Différents modèles disponibles pour ce terrain. Assurances et garanties du constructeur comprises (RC professionnelle, décennale, dommage ouvrage).Agence Maisons Balency de Baillet-en-France (95560)
- Téléphone :
- 01 34 46 05 23
- Adressse :
- 81 rue de Paris
95560 Baillet-en-France, France
