Maison neuve à
Conflans-Sainte-Honorine
(78700) Référence :
MU2445912_2
Prix du projet : Maison avec Terrain
prix 370 000 €
- 5 pièces
- 3 chambres
- Surface maison 90 m2
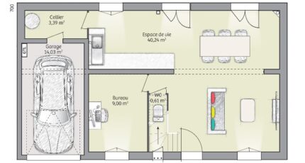
VENTE d'une maison de 5 pièces (90 m²) à Conflans-Sainte-Honorine
IDÉALEMENT SITUÉE - MAISON 5 PIÈCES NEUVE
Au pied de la gare (Paris à 20 min par le Transilien J), notre agence Maisons Balency Baillet-en-France est heureuse de vous proposer cette maison de 5 pièces de 90 m² idéalement située dans Conflans-Sainte-Honorine (78700).
Cette maison compte 2 niveaux. Son intérieur est composé de trois chambres, d'une cuisine et d'une salle de bains. Cette maison est neuve.
Le terrain de la propriété s'étend sur 320 m².
La maison se situe dans un secteur convoité. Plusieurs établissements scolaires (maternelle, élémentaire, primaire et lycée) se trouvent à moins de 10 minutes à pied, tout comme deux crèches. Niveau transports en commun, il y a la gare Conflans-Sainte-Honorine dans les alentours. On trouve un tennis, une bibliothèque, des commerces, des boucheries-charcuteries, des épiceries, un bureau de poste et trois supérettes à proximité de la maison.
Son prix de vente est de 370 000 €.
Prenez contact avec notre constructeur (URBANSKY Mylann : 06-23-32-28-23) pour plus d'informations sur la maison, sur les démarches à suivre ou sur les modalités de vente. Maisons Balency Baillet-en-France est là pour vous accompagner dans tous vos projets immobiliers.
Annonce proposée par un Agent Commercial Partenaire.
Mentions légales
Terrain proposé par un partenaire foncier selon disponibilités et autorisation de publicité au prix de 210 000 €. Hors droit d'enregistrement et frais de notaire. Terrain + Maison proposés au prix de 370 000 € (Hors branchements et raccordements, papiers peints, peintures, revêtement de sol dans les chambres. Tarif modifiable sans préavis). Etiquette énergie : A. Différents modèles disponibles pour ce terrain. Assurances et garanties du constructeur (RC professionnelle, décennale, dommage ouvrage, garantie de remboursement de l'acompte, livraison à prix et délai convenu) : https://www.maisons-balency.fr/informations-legales/. HEXAOM Services est enregistré auprès de l'ORIAS en tant que Courtier en financement, Niveau 1, sous le numéro 14001345.Agence Maisons Balency de Baillet-en-France (95560)
- Téléphone :
- 01 34 46 05 23
- Adressse :
- 81 rue de Paris
95560 Baillet-en-France, France
