Maison neuve à
Connaux (30330) Référence : PP2250214_2

Prix du projet : Maison avec Terrain

prix 247 500 €

  • 5 pièces
  • 3 chambres
  • Surface maison 85 m2

VENTE : maison de 5 pièces (85 m²) à Connaux
IDÉALEMENT SITUÉE - MAISON 5 PIÈCES NEUVE
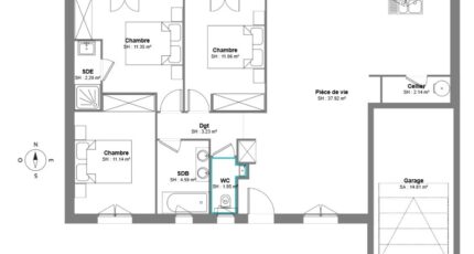
En vente à quelques kilomètres d'Avignon, votre agence Maisons Balency Uzès est heureuse de vous présenter cette maison de 5 pièces de plain-pied de 85 m² et de 408 m² de terrain idéalement située dans Connaux (30330).
Conçue de plain-pied, elle est composée de trois chambres, d'une cuisine et de deux salles de bains. Cette maison est neuve.
La maison est située dans un secteur recherché. Il y a l'École Primaire Robert Terral à moins de 10 minutes à pied. On trouve un accès à la nationale N86 à 9 km. On trouve un tennis, quatre commerces, deux boulangeries, un bureau de poste, une boucherie-charcuterie et une épicerie dans les environs.
Son prix de vente est de 247 500 €.
Contactez Pascale PIEL O6O1266483 pour obtenir de plus amples informations sur la maison ou sur les modalités de vente.

Mentions légales

Terrain proposé par un partenaire foncier selon disponibilités et autorisation de publicité au prix de 83 900 €. Hors droit d'enregistrement et frais de notaire. Maison proposée, avec un contrat de construction de maison individuelle, dans le cadre de la loi du 19/12/1990, au prix de 163 600 € (Hors branchements et raccordements, papiers peints, peintures, revêtement de sol dans les chambres, qui sont chiffrés dans les travaux qui restent à charge du client. Tarif modifiable sans préavis). Étiquette énergie : A. Différents modèles disponibles pour ce terrain. Assurances et garanties du constructeur comprises (RC professionnelle, décennale, dommage ouvrage).

Contactez l'agence de Uzès

04 66 57 25 45

    * Champs obligatoires

    Vos informations sont traitées par HEXAOM et transmises à un conseiller commercial qui vous contactera afin de répondre à votre demande. Les plans et images présentés sur notre site sont la propriété d’HEXAOM et ne peuvent pas être reproduits sans son accord. Pour retrouver notre politique de protection des données personnelles et exercer vos droits conformément à la « loi informatique et liberté » cliquez-ici.