Maison neuve à
Couilly-Pont-aux-Dames
(77860) Référence :
AM2355077_2
Prix du projet : Maison avec Terrain
prix 500 000 €
- 5 pièces
- 3 chambres
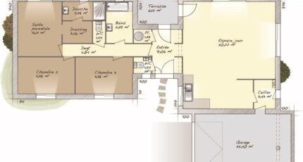
- Surface maison 120 m2
VENTE : maison T5 (120 m²) à Couilly-Pont-aux-Dames
MAISON 5 PIÈCES NEUVE - PROCHE DE MONTREUIL
À vendre : localisée à quelques kilomètres de Montreuil, à Couilly-Pont-aux-Dames (77860), Maisons Balency Saint-Maur-des-Fossés vous propose cette maison de 5 pièces de plain-pied de 120 m² et de 1 032 m² de terrain. Elle propose trois chambres, une cuisine et deux salles de bains.
Cette maison est neuve.
On trouve le Collège Privé Sainte Thérèse, l'École Primaire Privée Sainte-Thérèse et l'École Primaire Fabre d'Eglantine à moins de 10 minutes à pied et une structure d'accueil pour les enfants en bas âge. Côté transports, il y a la gare Couilly-Saint-Germain-Quincy juste à côté. On trouve un tennis, une bibliothèque, des commerces, trois boulangeries, un supermarché, un bureau de poste et une supérette à proximité.
Elle est proposée à l'achat pour 500 000 €.
Contactez Aurelien MONTANIER (06-24-66-88-34) pour toute question sur la maison ou sur les modalités de vente. Faites de vos projets immobiliers une réalité avec Maisons Balency Saint-Maur-des-Fossés.
Annonce proposée par un Agent Commercial Partenaire.
Mentions légales
Terrain proposé par un partenaire foncier selon disponibilités et autorisation de publicité au prix de 200 000 €. Hors droit d'enregistrement et frais de notaire. Maison proposée, avec un contrat de construction de maison individuelle, dans le cadre de la loi du 19/12/1990, au prix de 300 000 € (Hors branchements et raccordements, papiers peints, peintures, revêtement de sol dans les chambres, qui sont chiffrés dans les travaux qui restent à charge du client. Tarif modifiable sans préavis). Étiquette énergie : A. Différents modèles disponibles pour ce terrain. Assurances et garanties du constructeur comprises (RC professionnelle, décennale, dommage ouvrage).Agence Maisons Balency de Saint-Maur-des-Fossés (94100)
- Téléphone :
- 01 87 36 85 37
- Adressse :
- 12 avenue de la république
94100 Saint-Maur-des-Fossés, France
