Maison neuve à
Coulommiers
(77120) Référence :
CM2454292_1
Prix du projet : Maison avec Terrain
prix 278 000 €
- 4 pièces
- 2 chambres
- Surface maison 70 m2
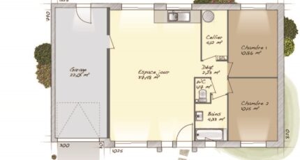
VENTE : maison T4 (70 m²) à Coulommiers
MAISON 4 PIÈCES NEUVE - PROCHE DE MEAUX
À côté du Transilien P (1 h de Paris), nous sommes heureux de vous proposer à vendre à Coulommiers (77120), cette maison de 4 pièces de plain-pied de 70 m² et de 2 200 m² de terrain. Conçue de plain-pied, elle comporte deux chambres, une cuisine et une salle de bains.
Cette maison est neuve.
Il y a plusieurs écoles (maternelle, élémentaire, primaire et collège) à moins de 10 minutes à pied. Niveau transports, on trouve la gare Coulommiers juste à côté. Il y a une bibliothèque, un tennis, un bassin de natation, des commerces, quatre boucheries-charcuteries, une poissonnerie, des épiceries et un bureau de poste dans les environs. Le marché Place du marché anime les environs.
Elle est à vendre pour la somme de 278 000 €.
Prenez contact avec Christophe MONTANIER (tél : 06-10-23-51-22) pour obtenir de plus amples informations sur la maison ou sur les démarches à suivre. Maisons Balency Saint-Maur-des-Fossés vous accompagne dans tous vos projets immobiliers et à toutes les étapes de l'achat.
Annonce proposée par un Agent Commercial Partenaire.
Mentions légales
Terrain proposé par un partenaire foncier selon disponibilités et autorisation de publicité au prix de 77 000 €. Hors droit d'enregistrement et frais de notaire. Terrain + Maison proposés au prix de 278 000 € (Hors branchements et raccordements, papiers peints, peintures, revêtement de sol dans les chambres. Tarif modifiable sans préavis). Etiquette énergie : A. Différents modèles disponibles pour ce terrain. Assurances et garanties du constructeur (RC professionnelle, décennale, dommage ouvrage, garantie de remboursement de l'acompte, livraison à prix et délai convenu) : https://www.maisons-balency.fr/informations-legales/. HEXAOM Services est enregistré auprès de l'ORIAS en tant que Courtier en financement, Niveau 1, sous le numéro 14001345.Agence Maisons Balency de Saint-Maur-des-Fossés (94100)
- Téléphone :
- 01 87 36 85 37
- Adressse :
- 12 avenue de la république
94100 Saint-Maur-des-Fossés, France
