Maison neuve à
Coulommiers
(77120) Référence :
CM2454292_2
Prix du projet : Maison avec Terrain
prix 238 000 €
- 3 pièces
- 2 chambres
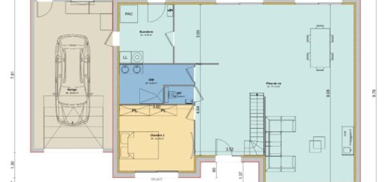
- Surface maison 71 m2
Maison T3 (71 m²) en vente à Coulommiers
PROCHE DE MEAUX - MAISON 3 PIÈCES NEUVE
Proche du Transilien P (1 h de Paris), ayez le coup de coeur pour à vendre à Coulommiers (77120), cette maison de 3 pièces de plain-pied de 71 m² et de 2 200 m² de terrain. Elle compte deux chambres, une cuisine et une salle de bains.
Cette maison est neuve.
Il y a plusieurs écoles (maternelle, élémentaire, primaire et collège) à moins de 10 minutes à pied. Niveau transports en commun, on trouve la gare Coulommiers à proximité. On trouve une bibliothèque, un tennis, un bassin de natation, des commerces, quatre boucheries-charcuteries, un bureau de poste, deux supérettes et des épiceries dans les environs. Le marché Place du marché anime les environs.
Elle est à vendre pour la somme de 238 000 €.
N'hésitez pas à prendre contact avec Christophe MONTANIER (06-10-23-51-22) pour plus d'informations sur la maison ou sur les modalités de vente.
Annonce proposée par un Agent Commercial Partenaire.
Mentions légales
Terrain proposé par un partenaire foncier selon disponibilités et autorisation de publicité au prix de 77 000 €. Hors droit d'enregistrement et frais de notaire. Terrain + Maison proposés au prix de 238 000 € (Hors branchements et raccordements, papiers peints, peintures, revêtement de sol dans les chambres. Tarif modifiable sans préavis). Etiquette énergie : A. Différents modèles disponibles pour ce terrain. Assurances et garanties du constructeur (RC professionnelle, décennale, dommage ouvrage, garantie de remboursement de l'acompte, livraison à prix et délai convenu) : https://www.maisons-balency.fr/informations-legales/. HEXAOM Services est enregistré auprès de l'ORIAS en tant que Courtier en financement, Niveau 1, sous le numéro 14001345.Agence Maisons Balency de Saint-Maur-des-Fossés (94100)
- Téléphone :
- 01 87 36 85 37
- Adressse :
- 12 avenue de la république
94100 Saint-Maur-des-Fossés, France
