Maison neuve à
Courbevoie (92400) Référence : AN2283720_4

Prix du projet : Maison avec Terrain

prix 895 000 €

  • 6 pièces
  • 4 chambres
  • Surface maison 91 m2

Courbevoie : maison de 6 pièces (91 m²) à vendre
MAISON 6 PIÈCES NEUVE
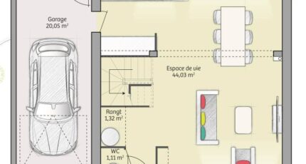
En vente : à côté de la gare (Paris à 10 min avec le Transilien L), Maisons Balency Dammartin-en-Goële vous propose cette maison de 6 pièces de 91 m² à Courbevoie (92400). Elle dispose de quatre chambres, d'une cuisine et d'une salle de bains.
Le terrain du bien est de 185 m².
C'est une maison de 2 niveaux. Elle est neuve.
Des écoles (de la maternelle au lycée) sont implantées à moins de 10 minutes à pied, tout comme 11 structures d'accueil pour la petite enfance. Niveau transports en commun, on trouve la gare Courbevoie dans les environs. Il y a une bibliothèque, un tennis, un bassin de natation, des commerces, des boulangeries, des supermarchés, des épiceries et une poissonnerie à proximité.
Elle est proposée à l'achat pour 895 000 €.
Prenez contact avec notre agence (NISTOR Anda : 07-81-86-62-91) pour obtenir de plus amples renseignements sur cette maison. Maisons Balency Dammartin-en-Goële est là pour vous accompagner dans tous vos projets immobiliers.

Annonce proposée par un Agent Commercial Partenaire.

Mentions légales

Terrain proposé par un partenaire foncier selon disponibilités et autorisation de publicité au prix de 560 000 €. Hors droit d'enregistrement et frais de notaire. Maison proposée, avec un contrat de construction de maison individuelle, dans le cadre de la loi du 19/12/1990, au prix de 335 000 € (Hors branchements et raccordements, papiers peints, peintures, revêtement de sol dans les chambres, qui sont chiffrés dans les travaux qui restent à charge du client. Tarif modifiable sans préavis). Étiquette énergie : A. Différents modèles disponibles pour ce terrain. Assurances et garanties du constructeur comprises (RC professionnelle, décennale, dommage ouvrage).

Contactez l'agence de Dammartin-en-Goële

01 60 54 23 04

    * Champs obligatoires

    Vos informations sont traitées par HEXAOM et transmises à un conseiller commercial qui vous contactera afin de répondre à votre demande. Les plans et images présentés sur notre site sont la propriété d’HEXAOM et ne peuvent pas être reproduits sans son accord. Pour retrouver notre politique de protection des données personnelles et exercer vos droits conformément à la « loi informatique et liberté » cliquez-ici.