Maison neuve à
Courcelles-sur-Seine (27940) Référence : SH2304681_4

Prix du projet : Maison avec Terrain

prix 210 000 €

  • 6 pièces
  • 4 chambres
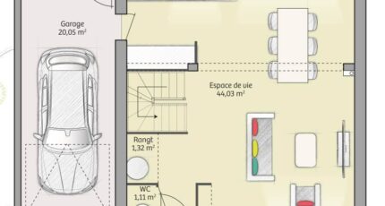
  • Surface maison 91 m2

VENTE d'une maison F6 (91 m²) à Courcelles-sur-Seine
PROCHE GARE - MAISON 6 PIÈCES NEUVE
À vendre à deux pas d'Évreux, dans Courcelles-sur-Seine (27940), proche de la gare, notre agence Maisons Balency Louviers est ravie de vous proposer cette maison de 6 pièces de 91 m².
Il s'agit d'une maison de 2 niveaux. Son intérieur comporte quatre chambres, une cuisine et une salle de bains. Cette maison est neuve.
Le terrain du bien s'étend sur 660 m².
Il y a l'École Primaire Claude Monet à moins de 10 minutes à pied et une structure d'accueil pour les tout-petits. Côté transports, on trouve la gare Gaillon-Aubevoye à moins de 10 minutes en voiture. Il y a un accès à l'autoroute A13 à 7 km. Il y a deux commerces et une boulangerie à quelques minutes à peine.
Son prix de vente est de 210 000 €.
Contactez notre constructeur (HOTTE Sébastien : 06-15-58-21-40) pour tout renseignement sur la maison.

Annonce proposée par un Agent Commercial Partenaire.

Mentions légales

Terrain proposé par un partenaire foncier selon disponibilités et autorisation de publicité au prix de 57 000 €. Hors droit d'enregistrement et frais de notaire. Maison proposée, avec un contrat de construction de maison individuelle, dans le cadre de la loi du 19/12/1990, au prix de 153 000 € (Hors branchements et raccordements, papiers peints, peintures, revêtement de sol dans les chambres, qui sont chiffrés dans les travaux qui restent à charge du client. Tarif modifiable sans préavis). Étiquette énergie : A. Différents modèles disponibles pour ce terrain. Assurances et garanties du constructeur comprises (RC professionnelle, décennale, dommage ouvrage).

Contactez l'agence de Louviers

02 32 51 43 53

    * Champs obligatoires

    Vos informations sont traitées par HEXAOM et transmises à un conseiller commercial qui vous contactera afin de répondre à votre demande. Les plans et images présentés sur notre site sont la propriété d’HEXAOM et ne peuvent pas être reproduits sans son accord. Pour retrouver notre politique de protection des données personnelles et exercer vos droits conformément à la « loi informatique et liberté » cliquez-ici.