Maison neuve à
Courgent
(78790) Référence :
AD2301029_1
Prix du projet : Maison avec Terrain
prix 417 665 €
- 6 pièces
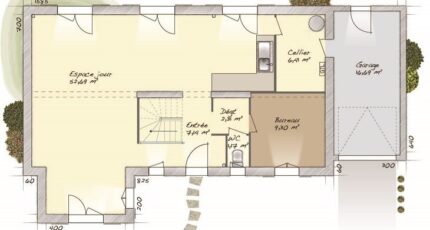
- 3 chambres
- Surface maison 133 m2
Maison T6 (133 m²) à vendre à Courgent
MAISON 6 PIÈCES NEUVE - PROCHE DE MANTES-LA-JOLIE
À deux pas du Transilien N (gare de Tacoignières-Richebourg, 50 min de Paris), notre agence Maisons Balency Coignières est ravie de vous proposer cette maison de 6 pièces de 133 m² et de 600 m² de terrain à vendre à Courgent (78790).
C'est une maison de 2 niveaux. Elle dispose de trois chambres, d'une cuisine et de deux salles de bains. Cette maison est neuve.
On trouve une école primaire dans le quartier. Niveau transports, il y a deux gares (Tacoignières-Richebourg et Orgerus-Béhoust) à moins de 10 minutes en voiture. On trouve un commerce à proximité du bien.
Son prix de vente est de 417 665 €.
Contactez Arnaud DUTEURTRE (tél : 06-13-43-01-46) pour tout renseignement sur cette maison, sur les modalités de vente ou sur les démarches à suivre. Maisons Balency Coignières vous accompagne dans tous vos projets immobiliers et à toutes les étapes de votre projet.
Annonce proposée par un Agent Commercial Partenaire.
Mentions légales
Terrain proposé par un partenaire foncier selon disponibilités et autorisation de publicité au prix de 129 000 €. Hors droit d'enregistrement et frais de notaire. Maison proposée, avec un contrat de construction de maison individuelle, dans le cadre de la loi du 19/12/1990, au prix de 288 665 € (Hors branchements et raccordements, papiers peints, peintures, revêtement de sol dans les chambres, qui sont chiffrés dans les travaux qui restent à charge du client. Tarif modifiable sans préavis). Étiquette énergie : A. Différents modèles disponibles pour ce terrain. Assurances et garanties du constructeur comprises (RC professionnelle, décennale, dommage ouvrage).Agence Maisons Balency de Coignières (78310)
- Téléphone :
- 01 34 61 42 59
- Adressse :
- Domexpo Ouest
78310 Coignières, France
