Maison neuve à
Coutevroult (77580) Référence : AN2334845_1

Prix du projet : Maison avec Terrain

prix 595 000 €

  • 5 pièces
  • 4 chambres
  • Surface maison 114 m2

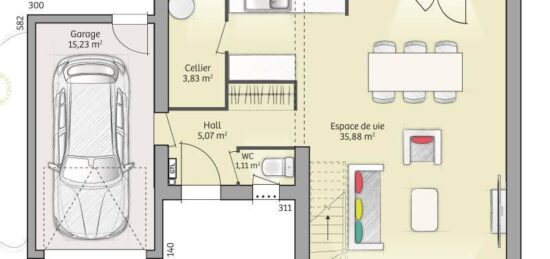
Maison T5 (114 m²) à vendre à Coutevroult
MAISON 5 PIÈCES NEUVE 
À vendre : à quelques minutes du Transilien P (gare d'Esbly, 30 min de Paris), à Coutevroult (77580), notre agence Maisons Balency Dammartin-en-Goële est heureuse de vous proposer cette maison de 5 pièces de 114 m² et de 1 014 m² de terrain. Son intérieur offre quatre chambres, une cuisine et une salle de bains.
Cette maison possède 2 niveaux. Elle est neuve.
Il y a l'École Primaire Pierre Falke à moins de 10 minutes à pied. Niveau transports, on trouve la ligne de RER A (Chessy-Marne-La-Vallée) ainsi que huit gares à moins de 10 minutes en voiture. Il y a deux commerces à quelques minutes de la maison.
Elle est proposée à l'achat pour 595 000 €.
Contactez Anda NISTOR (07-81-86-62-91) pour plus de renseignements sur la maison. Maisons Balency Dammartin-en-Goële est là pour vous accompagner dans toutes vos démarches.

Annonce proposée par un Agent Commercial Partenaire.

Mentions légales

Terrain proposé par un partenaire foncier selon disponibilités et autorisation de publicité au prix de 265 000 €. Hors droit d'enregistrement et frais de notaire. Maison proposée, avec un contrat de construction de maison individuelle, dans le cadre de la loi du 19/12/1990, au prix de 330 000 € (Hors branchements et raccordements, papiers peints, peintures, revêtement de sol dans les chambres, qui sont chiffrés dans les travaux qui restent à charge du client. Tarif modifiable sans préavis). Étiquette énergie : A. Différents modèles disponibles pour ce terrain. Assurances et garanties du constructeur comprises (RC professionnelle, décennale, dommage ouvrage).

Contactez l'agence de Dammartin-en-Goële

01 60 54 23 04

    * Champs obligatoires

    Vos informations sont traitées par HEXAOM et transmises à un conseiller commercial qui vous contactera afin de répondre à votre demande. Les plans et images présentés sur notre site sont la propriété d’HEXAOM et ne peuvent pas être reproduits sans son accord. Pour retrouver notre politique de protection des données personnelles et exercer vos droits conformément à la « loi informatique et liberté » cliquez-ici.