Maison neuve à
Coutevroult (77580) Référence : AN2369680_3

Prix du projet : Maison avec Terrain

prix 510 662 €

  • 5 pièces
  • 3 chambres
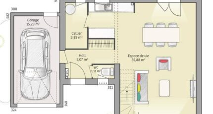
  • Surface maison 90 m2

Coutevroult : maison de 5 pièces (90 m²) à vendre
MAISON 5 PIÈCES NEUVE -
À vendre : à deux pas de la gare d'Esbly (Paris à 30 min avec le Transilien P), nous vous proposons cette maison de 5 pièces de 90 m² et de 1 014 m² de terrain à Coutevroult (77580). Son intérieur comporte trois chambres, une cuisine et une salle de bains.
Cette maison compte 2 niveaux. Elle est neuve.
L'École Primaire Pierre Falke est implantée à moins de 10 minutes à pied. Niveau transports, on trouve la ligne de RER A (Chessy-Marne-La-Vallée) ainsi que huit gares à moins de 10 minutes en voiture. Il y a deux commerces à proximité.
Elle est à vendre pour la somme de 510 662 €.
Contactez Anda NISTOR (07-81-86-62-91) pour plus de renseignements sur cette maison. Maisons Balency Dammartin-en-Goële est là pour vous accompagner dans tous vos projets immobiliers.

Annonce proposée par un Agent Commercial Partenaire.

Mentions légales

Terrain proposé par un partenaire foncier selon disponibilités et autorisation de publicité au prix de 265 000 €. Hors droit d'enregistrement et frais de notaire. Terrain + Maison proposés au prix de 245 662 € (Hors branchements et raccordements, papiers peints, peintures, revêtement de sol dans les chambres. Tarif modifiable sans préavis). Etiquette énergie : A. Différents modèles disponibles pour ce terrain. Assurances et garanties du constructeur (RC professionnelle, décennale, dommage ouvrage, garantie de remboursement de l'acompte, livraison à prix et délai convenu) : https://www.maisons-balency.fr/informations-legales/. HEXAOM Services est enregistré auprès de l'ORIAS en tant que Courtier en financement, Niveau 1, sous le numéro 14001345.

Contactez l'agence de Dammartin-en-Goële

01 60 54 23 04

    * Champs obligatoires

    Vos informations sont traitées par HEXAOM et transmises à un conseiller commercial qui vous contactera afin de répondre à votre demande. Les plans et images présentés sur notre site sont la propriété d’HEXAOM et ne peuvent pas être reproduits sans son accord. Pour retrouver notre politique de protection des données personnelles et exercer vos droits conformément à la « loi informatique et liberté » cliquez-ici.