Maison neuve à
Coye-la-Forêt
(60580) Référence :
AF2334415_2
Prix du projet : Maison avec Terrain
prix 430 000 €
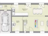
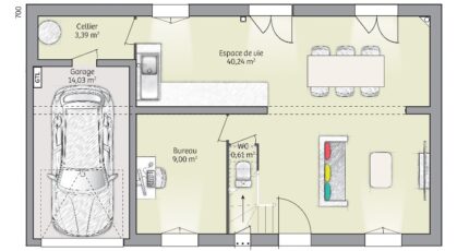
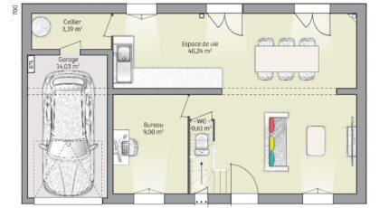
- 5 pièces
- 3 chambres
- Surface maison 90 m2
Coye-la-Forêt : maison T5 (90 m²) à vendre
PROCHE DE SAINT-DENIS - MAISON 5 PIÈCES NEUVE
En vente : proche de la station Orry-la-Ville-Coye du RER D (40 min de Paris), à Coye-la-Forêt (60580), Maisons Balency Baillet-en-France vous propose cette maison de 5 pièces de 90 m².
C'est une maison de 2 niveaux. Elle est composée de trois chambres, d'une cuisine et d'une salle de bains. La maison est neuve.
Le terrain du bien s'étend sur 1 000 m².
L'École Maternelle les Bruyères et l'École Élémentaire des Bruyères sont implantées à moins de 10 minutes à pied. Niveau transports en commun, il y a la ligne de RER D (Orry-La-Ville-Coye) ainsi que 10 gares à moins de 10 minutes en voiture. L'autoroute A1 et la nationale N104 sont accessibles à moins de 10 km et Saint-Denis est située à 25 km. On trouve une bibliothèque, deux tennis, des commerces, une boulangerie, une boucherie-charcuterie, un bureau de poste et une supérette dans les environs.
Son prix de vente est de 430 000 €.
Contactez notre agence (Antoine FLIPPE : 07-82-59-37-75) pour toute question sur cette maison, sur les démarches à suivre ou sur les modalités de vente.
Annonce proposée par un Agent Commercial Partenaire.
Mentions légales
Terrain proposé par un partenaire foncier selon disponibilités et autorisation de publicité au prix de 200 000 €. Hors droit d'enregistrement et frais de notaire. Maison proposée, avec un contrat de construction de maison individuelle, dans le cadre de la loi du 19/12/1990, au prix de 230 000 € (Hors branchements et raccordements, papiers peints, peintures, revêtement de sol dans les chambres, qui sont chiffrés dans les travaux qui restent à charge du client. Tarif modifiable sans préavis). Étiquette énergie : A. Différents modèles disponibles pour ce terrain. Assurances et garanties du constructeur comprises (RC professionnelle, décennale, dommage ouvrage).Agence Maisons Balency de Baillet-en-France (95560)
- Téléphone :
- 01 34 46 05 23
- Adressse :
- 81 rue de Paris
95560 Baillet-en-France, France
