Maison neuve à
Crégy-lès-Meaux
(77124) Référence :
MU2328015_4
Prix du projet : Maison avec Terrain
prix 269 000 €
- 5 pièces
- 3 chambres
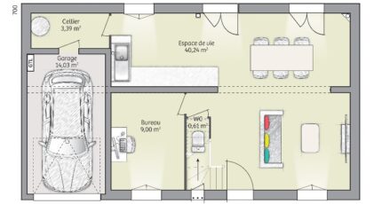
- Surface maison 90 m2
VENTE : maison de 5 pièces (90 m²) à Crégy-lès-Meaux
IDÉALEMENT SITUÉE - MAISON 5 PIÈCES NEUVE
À proximité du Transilien P (gare de Meaux, 25 min de Paris), nous vous proposons à vendre, idéalement située dans Crégy-lès-Meaux (77124), cette maison de 5 pièces de 90 m².
Cette maison possède 2 niveaux. Son intérieur se divise en trois chambres, une cuisine et une salle de bains. Cette maison est neuve.
Le terrain de la propriété est de 800 m².
Le bien se situe dans un secteur prisé. Il y a l'École Élémentaire Jean Rostand, le Collège George Sand et l'École Maternelle Jacques Tati à moins de 10 minutes à pied. Niveau transports en commun, on trouve les gares Meaux, Trilport et Esbly à moins de 10 minutes en voiture. On trouve une bibliothèque, un tennis, une boulangerie, deux commerces, deux supermarchés et un bureau de poste à quelques minutes.
Son prix de vente est de 269 000 €.
Contactez notre agence (URBANSKY Mylann : 06-23-32-28-23) pour obtenir de plus amples informations sur la maison, sur les démarches à suivre ou sur les modalités de vente. Faites de vos projets immobiliers une réalité avec Maisons Balency Baillet-en-France.
Annonce proposée par un Agent Commercial Partenaire.
Mentions légales
Terrain proposé par un partenaire foncier selon disponibilités et autorisation de publicité au prix de 109 000 €. Hors droit d'enregistrement et frais de notaire. Maison proposée, avec un contrat de construction de maison individuelle, dans le cadre de la loi du 19/12/1990, au prix de 160 000 € (Hors branchements et raccordements, papiers peints, peintures, revêtement de sol dans les chambres, qui sont chiffrés dans les travaux qui restent à charge du client. Tarif modifiable sans préavis). Étiquette énergie : A. Différents modèles disponibles pour ce terrain. Assurances et garanties du constructeur comprises (RC professionnelle, décennale, dommage ouvrage).Agence Maisons Balency de Baillet-en-France (95560)
- Téléphone :
- 01 34 46 05 23
- Adressse :
- 81 rue de Paris
95560 Baillet-en-France, France
