Maison neuve à
Crestot (27110) Référence : SH2439234_2

Prix du projet : Maison avec Terrain

prix 260 000 €

  • 6 pièces
  • 4 chambres
  • Surface maison 117 m2

VENTE d'une maison de 6 pièces (117 m²) à Crestot
EMPLACEMENT PRIVILÉGIÉ - MAISON 6 PIÈCES NEUVE
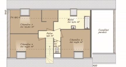
En vente : située à deux pas de Rouen, nous sommes heureux de vous proposer cette maison de 6 pièces de plain-pied de 117 m² bénéficiant d'un emplacement privilégié dans Crestot (27110). Son intérieur est composé de quatre chambres, d'une cuisine et de deux salles de bains.
Le terrain du bien est de 1 100 m².
Cette maison est neuve.
La maison est située dans un secteur convoité. On trouve un commerce dans les environs.
Elle est à vendre pour la somme de 260 000 €.
N'hésitez pas à prendre contact avec notre agence (Sébastien HOTTE : 06-15-58-21-40) pour toute information sur la maison, sur les démarches à suivre et sur les modalités de vente. Maisons Balency Louviers vous accompagne dans tous vos projets immobiliers et à toutes les étapes de votre projet.

Annonce proposée par un Agent Commercial Partenaire.

Mentions légales

Terrain proposé par un partenaire foncier selon disponibilités et autorisation de publicité au prix de 40 000 €. Hors droit d'enregistrement et frais de notaire. Terrain + Maison proposés au prix de 260 000 € (Hors branchements et raccordements, papiers peints, peintures, revêtement de sol dans les chambres. Tarif modifiable sans préavis). Etiquette énergie : A. Différents modèles disponibles pour ce terrain. Assurances et garanties du constructeur (RC professionnelle, décennale, dommage ouvrage, garantie de remboursement de l'acompte, livraison à prix et délai convenu) : https://www.maisons-balency.fr/informations-legales/. HEXAOM Services est enregistré auprès de l'ORIAS en tant que Courtier en financement, Niveau 1, sous le numéro 14001345.

Contactez l'agence de Louviers

02 32 51 43 53

    * Champs obligatoires

    Vos informations sont traitées par HEXAOM et transmises à un conseiller commercial qui vous contactera afin de répondre à votre demande. Les plans et images présentés sur notre site sont la propriété d’HEXAOM et ne peuvent pas être reproduits sans son accord. Pour retrouver notre politique de protection des données personnelles et exercer vos droits conformément à la « loi informatique et liberté » cliquez-ici.