Maison neuve à
Criquebeuf-sur-Seine (27340) Référence : KB2385975_3

Prix du projet : Maison avec Terrain

prix 360 000 €

  • 7 pièces
  • 5 chambres
  • Surface maison 170 m2

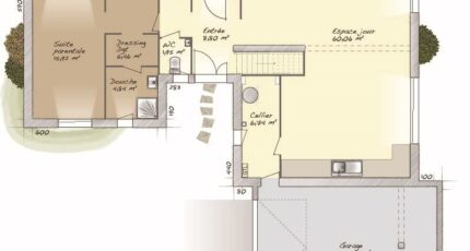
VENTE d'une maison T7 (170 m²) à Criquebeuf-sur-Seine
IDÉALEMENT SITUÉE - MAISON 7 PIÈCES NEUVE
À vendre à deux pas de Rouen, idéalement située dans Criquebeuf-sur-Seine (27340), votre agence Maisons Balency Boos est ravie de vous proposer cette maison de 7 pièces de plain-pied de 170 m² et de 600 m² de terrain.
Elle est composée de cinq chambres, d'une cuisine et de trois salles de bains. Cette maison est neuve.
La maison se situe dans un secteur prisé. L'École Primaire Simone Veil se trouve à moins de 10 minutes à pied. Côté transports, il y a six gares à moins de 10 minutes en voiture. Les autoroutes A13, A139 et A154 et la nationale N138 sont accessibles à moins de 10 km. On trouve deux boulangeries et une boucherie-charcuterie à proximité du logement.
Elle est proposée à l'achat pour 360 000 €.
Prenez contact avec Kamel BAZIZ (07-80-36-63-82) pour toute question sur la propriété ou sur les modalités de vente. Maisons Balency Boos vous accompagne dans tous vos projets immobiliers et dans toutes vos démarches.

Annonce proposée par un Agent Commercial Partenaire.

Mentions légales

Terrain proposé par un partenaire foncier selon disponibilités et autorisation de publicité au prix de 88 000 €. Hors droit d'enregistrement et frais de notaire. Terrain + Maison proposés au prix de 360 000 € (Hors branchements et raccordements, papiers peints, peintures, revêtement de sol dans les chambres. Tarif modifiable sans préavis). Etiquette énergie : A. Différents modèles disponibles pour ce terrain. Assurances et garanties du constructeur (RC professionnelle, décennale, dommage ouvrage, garantie de remboursement de l'acompte, livraison à prix et délai convenu) : https://www.maisons-balency.fr/informations-legales/. HEXAOM Services est enregistré auprès de l'ORIAS en tant que Courtier en financement, Niveau 1, sous le numéro 14001345.

Contactez l'agence de Boos

02 35 80 66 66

    * Champs obligatoires

    Vos informations sont traitées par HEXAOM et transmises à un conseiller commercial qui vous contactera afin de répondre à votre demande. Les plans et images présentés sur notre site sont la propriété d’HEXAOM et ne peuvent pas être reproduits sans son accord. Pour retrouver notre politique de protection des données personnelles et exercer vos droits conformément à la « loi informatique et liberté » cliquez-ici.