Maison neuve à
Criquebeuf-sur-Seine (27340) Référence : KB2385975_4

Prix du projet : Maison avec Terrain

prix 385 000 €

  • 7 pièces
  • 4 chambres
  • Surface maison 160 m2

Criquebeuf-sur-Seine : maison de 7 pièces (160 m²) en vente
IDÉALEMENT SITUÉE - MAISON 7 PIÈCES NEUVE
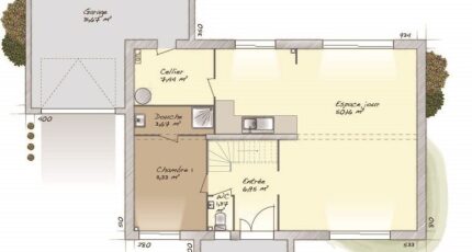
En vente : à 17 km de Rouen, nous sommes ravis de vous proposer, idéalement située dans Criquebeuf-sur-Seine (27340), cette maison de 7 pièces de 160 m² et de 600 m² de terrain.
C'est une maison de 2 niveaux. Elle comporte quatre chambres, une cuisine et deux salles de bains. Cette maison est neuve.
Le bien se trouve dans un quartier convoité. L'École Primaire Simone Veil est implantée à moins de 10 minutes à pied. Niveau transports, on trouve six gares à moins de 10 minutes en voiture. Les autoroutes A13, A139 et A154 et la nationale N138 sont accessibles à moins de 10 km. Il y a deux boulangeries et une boucherie-charcuterie à proximité du bien.
Son prix de vente est de 385 000 €.
Prenez contact avec notre agence (Kamel BAZIZ : 07-80-36-63-82) pour plus d'informations sur la maison, sur les modalités de vente ou sur les démarches à suivre. Maisons Balency Boos est là pour vous accompagner dans tous vos projets immobiliers.

Annonce proposée par un Agent Commercial Partenaire.

Mentions légales

Terrain proposé par un partenaire foncier selon disponibilités et autorisation de publicité au prix de 88 000 €. Hors droit d'enregistrement et frais de notaire. Terrain + Maison proposés au prix de 297 000 € (Hors branchements et raccordements, papiers peints, peintures, revêtement de sol dans les chambres. Tarif modifiable sans préavis). Etiquette énergie : A. Différents modèles disponibles pour ce terrain. Assurances et garanties du constructeur (RC professionnelle, décennale, dommage ouvrage, garantie de remboursement de l'acompte, livraison à prix et délai convenu) : https://www.maisons-balency.fr/informations-legales/. HEXAOM Services est enregistré auprès de l'ORIAS en tant que Courtier en financement, Niveau 1, sous le numéro 14001345.

Contactez l'agence de Boos

02 35 80 66 66

    * Champs obligatoires

    Vos informations sont traitées par HEXAOM et transmises à un conseiller commercial qui vous contactera afin de répondre à votre demande. Les plans et images présentés sur notre site sont la propriété d’HEXAOM et ne peuvent pas être reproduits sans son accord. Pour retrouver notre politique de protection des données personnelles et exercer vos droits conformément à la « loi informatique et liberté » cliquez-ici.