Maison neuve à
Critot (76680) Référence : KB2353757_2

Prix du projet : Maison avec Terrain

prix 155 000 €

  • 4 pièces
  • 2 chambres
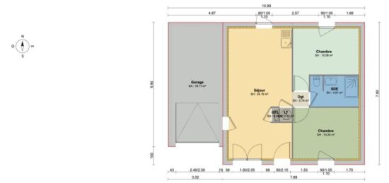
  • Surface maison 50 m2

Maison F4 (49 m²) en vente à Critot
IDÉALEMENT SITUÉE - MAISON 4 PIÈCES NEUVE
En vente : à 40 km de la Manche et à 22 km de Rouen, idéalement située dans Critot (76680), nous vous présentons cette maison de 4 pièces de plain-pied de 49 m² et de 1 000 m² de terrain.
Son intérieur compte deux chambres, une cuisine et une salle de bains. La maison est neuve.
La maison se situe dans un quartier prisé. Une école maternelle y est implantée. Niveau transports, on trouve les gares Montérolier-Buchy, Longuerue-Vieux-Manoir et Morgny-la-Pommeraye à moins de 10 minutes en voiture. Les autoroutes A28 et A29 sont accessibles à moins de 5 km. Il y a un tennis et une bibliothèque dans les environs.
Elle est à vendre pour la somme de 155 000 €.
Prenez contact avec Kamel BAZIZ (tél : 07-80-36-63-82) pour tout renseignement sur la maison, sur les modalités de vente ou sur les démarches à suivre. Maisons Balency Boos vous accompagne dans tous vos projets immobiliers et à toutes les étapes de l'achat.

Annonce proposée par un Agent Commercial Partenaire.

Mentions légales

Terrain proposé par un partenaire foncier selon disponibilités et autorisation de publicité au prix de 48 000 €. Hors droit d'enregistrement et frais de notaire. Terrain + Maison proposés au prix de 107 000 € (Hors branchements et raccordements, papiers peints, peintures, revêtement de sol dans les chambres. Tarif modifiable sans préavis). Etiquette énergie : A. Différents modèles disponibles pour ce terrain. Assurances et garanties du constructeur (RC professionnelle, décennale, dommage ouvrage, garantie de remboursement de l'acompte, livraison à prix et délai convenu) : https://www.maisons-balency.fr/informations-legales/. HEXAOM Services est enregistré auprès de l'ORIAS en tant que Courtier en financement, Niveau 1, sous le numéro 14001345.

Contactez l'agence de Boos

02 35 80 66 66

    * Champs obligatoires

    Vos informations sont traitées par HEXAOM et transmises à un conseiller commercial qui vous contactera afin de répondre à votre demande. Les plans et images présentés sur notre site sont la propriété d’HEXAOM et ne peuvent pas être reproduits sans son accord. Pour retrouver notre politique de protection des données personnelles et exercer vos droits conformément à la « loi informatique et liberté » cliquez-ici.