Maison neuve à
Cuverville (27700) Référence : RC2392141_3

Prix du projet : Maison avec Terrain

prix 255 396 €

  • 6 pièces
  • 4 chambres
  • Surface maison 98 m2

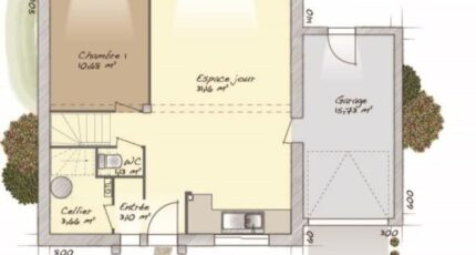
Cuverville : maison F6 (98 m²) à construire.
IDÉALEMENT SITUÉE - MAISON 6 PIÈCES NEUVE
À vendre à deux pas de Rouen, nous vous proposons cette maison de 6 pièces de 98 m² idéalement située dans Cuverville (27700). Elle comporte quatre chambres, une cuisine et une salle de bains.
Le terrain de la propriété est de 1 800 m².
Cette maison compte 2 niveaux. Elle est neuve.
La maison se situe dans un secteur recherché. Des établissements scolaires du primaire et du secondaire sont implantés à moins de 10 minutes en voiture, tout comme trois structures d'accueil pour les tout-petits à moins de 10 minutes à pied. Il y a une bibliothèque, deux ports de plaisance, deux bassins de natation, des tennis, des commerces, des boulangeries, des supermarchés, des épiceries et des bureaux de poste à quelques minutes. 2 marchés animent le quartier.
Elle est à vendre pour la somme de 255 396 €.
N'hésitez pas à prendre contact avec Célia RENIER (tél : 07-62-90-87-77) pour plus de renseignements sur la maison. Concrétisez vos projets immobiliers avec Maisons Balency Boos.

Annonce proposée par un Agent Commercial Partenaire.

Mentions légales

Terrain proposé par un partenaire foncier selon disponibilités et autorisation de publicité au prix de 55 000 €. Hors droit d'enregistrement et frais de notaire. Terrain + Maison proposés au prix de 255 396 € (Hors branchements et raccordements, papiers peints, peintures, revêtement de sol dans les chambres. Tarif modifiable sans préavis). Etiquette énergie : A. Différents modèles disponibles pour ce terrain. Assurances et garanties du constructeur (RC professionnelle, décennale, dommage ouvrage, garantie de remboursement de l'acompte, livraison à prix et délai convenu) : https://www.maisons-balency.fr/informations-legales/. HEXAOM Services est enregistré auprès de l'ORIAS en tant que Courtier en financement, Niveau 1, sous le numéro 14001345.

Contactez l'agence de Boos

02 35 80 66 66

    * Champs obligatoires

    Vos informations sont traitées par HEXAOM et transmises à un conseiller commercial qui vous contactera afin de répondre à votre demande. Les plans et images présentés sur notre site sont la propriété d’HEXAOM et ne peuvent pas être reproduits sans son accord. Pour retrouver notre politique de protection des données personnelles et exercer vos droits conformément à la « loi informatique et liberté » cliquez-ici.