Maison neuve à
Dammartin-en-Serve
(78111) Référence :
CM2332999_1
Prix du projet : Maison avec Terrain
prix 920 000 €
- 7 pièces
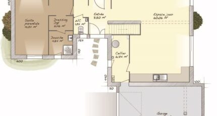
- 5 chambres
- Surface maison 170 m2
Fourqueux : maison T7 (170 m²) en vente
MAISON 7 PIÈCES NEUVE - PROCHE DE PARIS
À deux pas de la gare de Saint-Nom-la-Bretèche Forêt de Marly (Paris à 40 min avec le Transilien L), Maisons Balency Saint-Maur-des-Fossés vous présente cette maison de 7 pièces de plain-pied de 170 m² et de 650 m² de terrain à Fourqueux (78112).
Conçue de plain-pied, elle offre cinq chambres, une cuisine et trois salles de bains. Cette maison est neuve.
Côté transports en commun, il y a le RER A et C ainsi que 27 gares à moins de 10 minutes en voiture. Des autoroutes et les nationales N13, N186 et N12 sont accessibles à moins de 10 km et Saint-Nom-la-Bretèche est située à 0 m. On trouve une bibliothèque, deux tennis, un bassin de natation, deux commerces, une boulangerie et un supermarché à proximité du bien.
Son prix de vente est de 920 000 €.
N'hésitez pas à prendre contact avec Christophe MONTANIER (tél : 06-10-23-51-22) pour toute question sur la maison ou sur les démarches à suivre.
Annonce proposée par un Agent Commercial Partenaire.
Mentions légales
Terrain proposé par un partenaire foncier selon disponibilités et autorisation de publicité au prix de 525 000 €. Hors droit d'enregistrement et frais de notaire. Terrain + Maison proposés au prix de 395 000 € (Hors branchements et raccordements, papiers peints, peintures, revêtement de sol dans les chambres. Tarif modifiable sans préavis). Etiquette énergie : A. Différents modèles disponibles pour ce terrain. Assurances et garanties du constructeur (RC professionnelle, décennale, dommage ouvrage, garantie de remboursement de l'acompte, livraison à prix et délai convenu) : https://www.maisons-balency.fr/informations-legales/. HEXAOM Services est enregistré auprès de l'ORIAS en tant que Courtier en financement, Niveau 1, sous le numéro 14001345.Agence Maisons Balency de Saint-Maur-des-Fossés (94100)
- Téléphone :
- 01 87 36 85 37
- Adressse :
- 12 avenue de la république
94100 Saint-Maur-des-Fossés, France
