Maison neuve à
Dammartin-en-Serve (78111) Référence : SH2459028_1

Prix du projet : Maison avec Terrain

prix 320 000 €

  • 6 pièces
  • 4 chambres
  • Surface maison 117 m2

Dammartin-en-Serve : maison de 6 pièces (117 m²) à vendre
QUARTIER RECHERCHÉ - MAISON 6 PIÈCES NEUVE
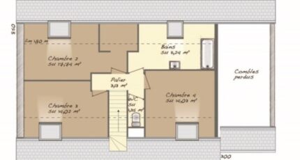
À vendre : à côté de la gare de Rosny-sur-Seine (Paris à 45 min avec le Transilien J), nous sommes heureux de vous présenter cette maison de 6 pièces de plain-pied de 117 m² nichée dans un quartier prisé de Dammartin-en-Serve (78111). Son intérieur dispose de quatre chambres, d'une cuisine et de deux salles de bains.
Le terrain de la propriété est de 570 m².
La maison est neuve.
Cette maison est située dans un secteur recherché. On y trouve l'École Primaire G. Bruhat. Niveau transports, il y a deux gares (Bréval et Rosny-sur-Seine) à moins de 10 minutes en voiture. Il y a une bibliothèque à proximité.
Elle est à vendre pour la somme de 320 000 €.
Prenez contact avec notre agence (Sébastien HOTTE : 06-15-58-21-40) pour toute question sur la maison, sur les modalités de vente ou sur les démarches à suivre. Maisons Balency Louviers vous accompagne dans tous vos projets immobiliers et dans toutes vos démarches.

Annonce proposée par un Agent Commercial Partenaire.

Mentions légales

Terrain proposé par un partenaire foncier selon disponibilités et autorisation de publicité au prix de 99 900 €. Hors droit d'enregistrement et frais de notaire. Terrain + Maison proposés au prix de 320 000 € (Hors branchements et raccordements, papiers peints, peintures, revêtement de sol dans les chambres. Tarif modifiable sans préavis). Etiquette énergie : A. Différents modèles disponibles pour ce terrain. Assurances et garanties du constructeur (RC professionnelle, décennale, dommage ouvrage, garantie de remboursement de l'acompte, livraison à prix et délai convenu) : https://www.maisons-balency.fr/informations-legales/. HEXAOM Services est enregistré auprès de l'ORIAS en tant que Courtier en financement, Niveau 1, sous le numéro 14001345.

Contactez l'agence de Louviers

02 32 51 43 53

    * Champs obligatoires

    Vos informations sont traitées par HEXAOM et transmises à un conseiller commercial qui vous contactera afin de répondre à votre demande. Les plans et images présentés sur notre site sont la propriété d’HEXAOM et ne peuvent pas être reproduits sans son accord. Pour retrouver notre politique de protection des données personnelles et exercer vos droits conformément à la « loi informatique et liberté » cliquez-ici.