Maison neuve à
Dampierre-en-Yvelines
(78720) Référence :
TD2305229_1
Prix du projet : Maison avec Terrain
prix 591 600 €
- 7 pièces
- 4 chambres
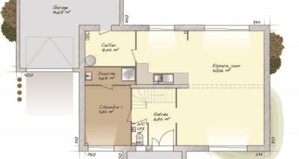
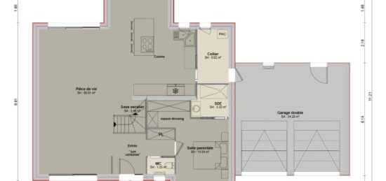
- Surface maison 160 m2
Maison T7 (160 m²) en vente à Dampierre-en-Yvelines
IDÉALEMENT SITUÉE - MAISON 7 PIÈCES NEUVE
À côté de la gare de Coignières (Paris à 40 min par le Transilien N), à vendre idéalement située dans Dampierre-en-Yvelines (78720), notre agence Maisons Balency Coignières est heureuse de vous proposer cette maison de 7 pièces de 160 m² avec vue sur jardin.
C'est une maison de 2 niveaux. Son intérieur offre quatre chambres, une cuisine et deux salles de bains. Cette maison est neuve.
Le terrain du bien est de 609 m².
Ce bien se situe dans un secteur recherché. Une école primaire y est implantée. Niveau transports, on trouve la ligne de RER B (Saint-Rémy-Lès-Chevreuse) ainsi que cinq gares à moins de 10 minutes en voiture. Il y a un tennis, une boulangerie, un commerce et une épicerie dans les environs.
Il est à vendre pour la somme de 591 600 €.
Contactez notre agence (DUTEURTRE Thibault : 06-23-41-73-81) pour toute question sur la maison, sur les modalités de vente ou sur les démarches à suivre. Maisons Balency Coignières est là pour vous accompagner dans tous vos projets immobiliers.
Annonce proposée par un Agent Commercial Partenaire.
Mentions légales
Terrain proposé par un partenaire foncier selon disponibilités et autorisation de publicité au prix de 220 000 €. Hors droit d'enregistrement et frais de notaire. Maison proposée, avec un contrat de construction de maison individuelle, dans le cadre de la loi du 19/12/1990, au prix de 371 600 € (Hors branchements et raccordements, papiers peints, peintures, revêtement de sol dans les chambres, qui sont chiffrés dans les travaux qui restent à charge du client. Tarif modifiable sans préavis). Étiquette énergie : A. Différents modèles disponibles pour ce terrain. Assurances et garanties du constructeur comprises (RC professionnelle, décennale, dommage ouvrage).Agence Maisons Balency de Coignières (78310)
- Téléphone :
- 01 34 61 42 59
- Adressse :
- Domexpo Ouest
78310 Coignières, France
