Maison neuve à
Dampierre-en-Yvelines
(78720) Référence :
TD2305229_5
Prix du projet : Maison avec Terrain
prix 471 600 €
- 6 pièces
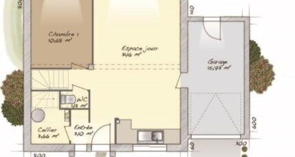
- 4 chambres
- Surface maison 98 m2
Dampierre-en-Yvelines : maison de 6 pièces (98 m²) à vendre
IDÉALEMENT SITUÉE - MAISON 6 PIÈCES NEUVE
À deux pas du Transilien N (gare de Coignières, 40 min de Paris), nous vous présentons cette maison de 6 pièces de 98 m² idéalement située dans Dampierre-en-Yvelines (78720). Elle est composée de quatre chambres, d'une cuisine et d'une salle de bains.
Le terrain de cette maison s'étend sur 609 m².
C'est une maison de 2 niveaux. Elle est neuve.
La propriété se situe dans un quartier prisé. Une école primaire y est implantée. Côté transports en commun, il y a la ligne de RER B (Saint-Rémy-Lès-Chevreuse) ainsi que cinq gares à moins de 10 minutes en voiture. On trouve un tennis, une boulangerie, un commerce et une épicerie à quelques minutes.
Elle est proposée à l'achat pour 471 600 €.
N'hésitez pas à prendre contact avec notre agence (Thibault DUTEURTRE : 06-23-41-73-81) pour toute information sur la maison.
Annonce proposée par un Agent Commercial Partenaire.
Mentions légales
Terrain proposé par un partenaire foncier selon disponibilités et autorisation de publicité au prix de 220 000 €. Hors droit d'enregistrement et frais de notaire. Maison proposée, avec un contrat de construction de maison individuelle, dans le cadre de la loi du 19/12/1990, au prix de 251 600 € (Hors branchements et raccordements, papiers peints, peintures, revêtement de sol dans les chambres, qui sont chiffrés dans les travaux qui restent à charge du client. Tarif modifiable sans préavis). Étiquette énergie : A. Différents modèles disponibles pour ce terrain. Assurances et garanties du constructeur comprises (RC professionnelle, décennale, dommage ouvrage).Agence Maisons Balency de Coignières (78310)
- Téléphone :
- 01 34 61 42 59
- Adressse :
- Domexpo Ouest
78310 Coignières, France
