Maison neuve à
Dampierre-en-Yvelines
(78720) Référence :
TD2305229_6
Prix du projet : Maison avec Terrain
prix 536 600 €
- 6 pièces
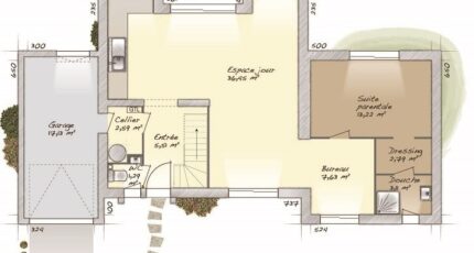
- 4 chambres
- Surface maison 90 m2
VENTE : maison de 6 pièces (90 m²) à Dampierre-en-Yvelines
IDÉALEMENT SITUÉE - MAISON 6 PIÈCES NEUVE
À deux pas de la gare de Coignières (Paris à 40 min par le Transilien N), nous vous présentons cette maison de 6 pièces de 90 m² et de 609 m² de terrain en vente idéalement située dans Dampierre-en-Yvelines (78720). Elle propose quatre chambres, une cuisine et deux salles de bains.
Il s'agit d'une maison de 2 niveaux. Elle est neuve.
La maison se trouve dans un quartier attractif. On y trouve une école primaire. Niveau transports, il y a la ligne de RER B (Saint-Rémy-Lès-Chevreuse) ainsi que cinq gares à moins de 10 minutes en voiture. On trouve un tennis, une boulangerie, un commerce et une épicerie à quelques minutes à peine.
Son prix de vente est de 536 600 €.
Contactez Thibault DUTEURTRE (tél : 06-23-41-73-81) pour tout renseignement sur la maison, sur les modalités de vente ou sur les démarches à suivre.
Annonce proposée par un Agent Commercial Partenaire.
Mentions légales
Terrain proposé par un partenaire foncier selon disponibilités et autorisation de publicité au prix de 220 000 €. Hors droit d'enregistrement et frais de notaire. Maison proposée, avec un contrat de construction de maison individuelle, dans le cadre de la loi du 19/12/1990, au prix de 316 600 € (Hors branchements et raccordements, papiers peints, peintures, revêtement de sol dans les chambres, qui sont chiffrés dans les travaux qui restent à charge du client. Tarif modifiable sans préavis). Étiquette énergie : A. Différents modèles disponibles pour ce terrain. Assurances et garanties du constructeur comprises (RC professionnelle, décennale, dommage ouvrage).Agence Maisons Balency de Coignières (78310)
- Téléphone :
- 01 34 61 42 59
- Adressse :
- Domexpo Ouest
78310 Coignières, France
