Maison neuve à
Darnétal (76160) Référence : MJ2349233_1

Prix du projet : Maison avec Terrain

prix 269 900 €

  • 5 pièces
  • 3 chambres
  • Surface maison 90 m2

VENTE d'une maison F5 (90 m²) à Saint-Aubin-Épinay
EMPLACEMENT PRIVILÉGIÉ - MAISON 5 PIÈCES NEUVE
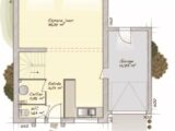
À vendre : localisée à deux pas de Rouen, nous sommes heureux de vous présenter cette maison de 5 pièces de 90 m² et de 505 m² de terrain bénéficiant d'un emplacement privilégié dans Saint-Aubin-Épinay (76160). Elle compte trois chambres, une cuisine et une salle de bains.
Cette maison comporte 2 niveaux. Elle est neuve.
La maison est située dans un secteur recherché. Il y a des écoles maternelles et élémentaires à moins de 10 minutes à pied et dont l'École Maternelle l'Eau Vive. Côté transports, on trouve quatre gares à moins de 10 minutes en voiture. Les autoroutes A28 et A150 et les nationales N28 et N338 sont accessibles à moins de 9 km.
Son prix de vente est de 269 900 €.
Prenez contact avec notre agence (Michael JOURDON : 06.43.05.84.44) pour obtenir de plus amples informations sur la maison, sur les démarches à suivre ou sur les modalités de vente. Maisons Balency Boos est là pour vous accompagner dans tous vos projets immobiliers.

Annonce proposée par un Agent Commercial Partenaire.

Mentions légales

Terrain proposé par un partenaire foncier selon disponibilités et autorisation de publicité au prix de 99 000 €. Hors droit d'enregistrement et frais de notaire. Maison proposée, avec un contrat de construction de maison individuelle, dans le cadre de la loi du 19/12/1990, au prix de 170 900 € (Hors branchements et raccordements, papiers peints, peintures, revêtement de sol dans les chambres, qui sont chiffrés dans les travaux qui restent à charge du client. Tarif modifiable sans préavis). Étiquette énergie : A. Différents modèles disponibles pour ce terrain. Assurances et garanties du constructeur comprises (RC professionnelle, décennale, dommage ouvrage).

Contactez l'agence de Boos

02 35 80 66 66

    * Champs obligatoires

    Vos informations sont traitées par HEXAOM et transmises à un conseiller commercial qui vous contactera afin de répondre à votre demande. Les plans et images présentés sur notre site sont la propriété d’HEXAOM et ne peuvent pas être reproduits sans son accord. Pour retrouver notre politique de protection des données personnelles et exercer vos droits conformément à la « loi informatique et liberté » cliquez-ici.