Maison neuve à
Delincourt
(60240) Référence :
MU2387958_5
Prix du projet : Maison avec Terrain
prix 235 900 €
- 5 pièces
- 3 chambres
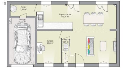
- Surface maison 90 m2
VENTE : maison T5 (90 m²) à Delincourt
IDÉALEMENT SITUÉE - MAISON 5 PIÈCES NEUVE
À côté de la gare de Chaumont-en-Vexin (Paris à 1 h avec le Transilien J), Maisons Balency Baillet-en-France vous propose cette maison de 5 pièces de 90 m² idéalement située dans Delincourt (60240).
Il s'agit d'une maison de 2 niveaux. Son intérieur comporte trois chambres, une cuisine et une salle de bains. Cette maison est neuve.
Le terrain de la propriété est de 670 m².
Cette maison est située dans un quartier convoité. Une école élémentaire y est implantée. Niveau transports en commun, on trouve cinq gares à moins de 10 minutes en voiture. Il y a un tennis à quelques minutes du bien.
Son prix de vente est de 235 900 €.
Prenez contact avec notre agence (URBANSKY Mylann : 06-23-32-28-23) pour toute question sur la maison ou sur les modalités de vente. Concrétisez vos projets immobiliers avec Maisons Balency Baillet-en-France.
Annonce proposée par un Agent Commercial Partenaire.
Mentions légales
Terrain proposé par un partenaire foncier selon disponibilités et autorisation de publicité au prix de 75 900 €. Hors droit d'enregistrement et frais de notaire. Terrain + Maison proposés au prix de 235 900 € (Hors branchements et raccordements, papiers peints, peintures, revêtement de sol dans les chambres. Tarif modifiable sans préavis). Etiquette énergie : A. Différents modèles disponibles pour ce terrain. Assurances et garanties du constructeur (RC professionnelle, décennale, dommage ouvrage, garantie de remboursement de l'acompte, livraison à prix et délai convenu) : https://www.maisons-balency.fr/informations-legales/. HEXAOM Services est enregistré auprès de l'ORIAS en tant que Courtier en financement, Niveau 1, sous le numéro 14001345.Agence Maisons Balency de Baillet-en-France (95560)
- Téléphone :
- 01 34 46 05 23
- Adressse :
- 81 rue de Paris
95560 Baillet-en-France, France
