Maison neuve à
Deuil-la-Barre
(95170) Référence :
MU2258335_3
Prix du projet : Maison avec Terrain
prix 335 000 €
- 5 pièces
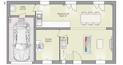
- 3 chambres
- Surface maison 90 m2
VENTE d'une maison de 5 pièces (90 m²) à Deuil-la-Barre
IDÉALEMENT SITUÉE - MAISON 5 PIÈCES NEUVE
En vente : proche du Transilien H (gare de Deuil-Montmagny, 15 min de Paris), notre agence Maisons Balency Pierrelaye est ravie de vous proposer, idéalement située dans Deuil-la-Barre (95170), cette maison de 5 pièces de 90 m². Son intérieur inclut trois chambres, une cuisine et une salle de bains.
Le terrain du bien s'étend sur 364 m².
Il s'agit d'une maison de 2 niveaux. Elle est neuve.
Cette maison est située dans un quartier prisé. Des écoles de tous types se trouvent à moins de 10 minutes à pied. Niveau transports en commun, il y a la gare Deuil-Montmagny dans les environs. On trouve une bibliothèque, des commerces, des boulangeries, deux supermarchés, des épiceries et quatre boucheries-charcuteries à quelques minutes du logement.
Son prix de vente est de 335 000 €.
Prenez contact avec Mylann URBANSKY (06-23-32-28-23) pour toute question sur la maison, sur les démarches à suivre ou sur les modalités de vente. Faites de vos projets immobiliers une réalité avec Maisons Balency Pierrelaye.
Annonce proposée par un Agent Commercial Partenaire.
Mentions légales
Terrain proposé par un partenaire foncier selon disponibilités et autorisation de publicité au prix de 184 000 €. Hors droit d'enregistrement et frais de notaire. Maison proposée, avec un contrat de construction de maison individuelle, dans le cadre de la loi du 19/12/1990, au prix de 151 000 € (Hors branchements et raccordements, papiers peints, peintures, revêtement de sol dans les chambres, qui sont chiffrés dans les travaux qui restent à charge du client. Tarif modifiable sans préavis). Étiquette énergie : A. Différents modèles disponibles pour ce terrain. Assurances et garanties du constructeur comprises (RC professionnelle, décennale, dommage ouvrage).Agence Maisons Balency de Baillet-en-France (95560)
- Téléphone :
- 01 34 46 05 23
- Adressse :
- 81 rue de Paris
95560 Baillet-en-France, France
