Maison neuve à
Dieppe (76200) Référence : MJ2349017_3

Prix du projet : Maison avec Terrain

prix 269 900 €

  • 6 pièces
  • 5 chambres
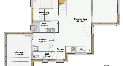
  • Surface maison 114 m2

VENTE d'une maison F6 (114 m²) à Derchigny
IDÉALEMENT SITUÉE - MAISON 6 PIÈCES NEUVE
À 4 km de la Manche et à 8 km de Dieppe, nous sommes heureux de vous présenter en vente, idéalement située dans Derchigny (76370), cette maison de 6 pièces de 114 m².
C'est une maison de 2 niveaux. Elle propose cinq chambres, une cuisine et deux salles de bains. La maison est neuve.
Le terrain de la propriété s'étend sur 500 m².
La maison est située dans un quartier convoité. Niveau transports en commun, on trouve la gare Dieppe à moins de 10 minutes en voiture. On trouve un accès à la nationale N27 à 16 km. Il y a une bibliothèque dans les environs.
Elle est à vendre pour la somme de 269 900 €.
N'hésitez pas à prendre contact avec notre agence (JOURDON Michael : 06.43.05.84.44) pour tout renseignement sur la maison, sur les modalités de vente et sur les démarches à suivre. Donnez vie à vos projets immobiliers avec Maisons Balency Boos.

Annonce proposée par un Agent Commercial Partenaire.

Mentions légales

Terrain proposé par un partenaire foncier selon disponibilités et autorisation de publicité au prix de 65 000 €. Hors droit d'enregistrement et frais de notaire. Maison proposée, avec un contrat de construction de maison individuelle, dans le cadre de la loi du 19/12/1990, au prix de 204 900 € (Hors branchements et raccordements, papiers peints, peintures, revêtement de sol dans les chambres, qui sont chiffrés dans les travaux qui restent à charge du client. Tarif modifiable sans préavis). Étiquette énergie : A. Différents modèles disponibles pour ce terrain. Assurances et garanties du constructeur comprises (RC professionnelle, décennale, dommage ouvrage).

Contactez l'agence de Boos

02 35 80 66 66

    * Champs obligatoires

    Vos informations sont traitées par HEXAOM et transmises à un conseiller commercial qui vous contactera afin de répondre à votre demande. Les plans et images présentés sur notre site sont la propriété d’HEXAOM et ne peuvent pas être reproduits sans son accord. Pour retrouver notre politique de protection des données personnelles et exercer vos droits conformément à la « loi informatique et liberté » cliquez-ici.