Maison neuve à
Dourdan
(91410) Référence :
AD2301128_1
Prix du projet : Maison avec Terrain
prix 317 620 €
- 6 pièces
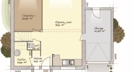
- 4 chambres
- Surface maison 98 m2
Maison T6 (98 m²) en vente à Dourdan
MAISON 6 PIÈCES NEUVE - PROCHE DE MASSY
À côté du RER C (55 min de Paris), nous vous présentons cette maison de 6 pièces de 98 m² et de 300 m² de terrain en vente à Dourdan (91410). Son intérieur se divise en quatre chambres, une cuisine et une salle de bains.
Cette maison comporte 2 niveaux. Elle est neuve.
Plusieurs établissements scolaires (maternelle, élémentaire, primaire et collège) sont implantés à moins de 10 minutes à pied. Niveau transports en commun, on trouve la station de RER Dourdan (ligne C) ainsi que la gare Dourdan à proximité. Il y a un bassin de natation, des commerces, trois supermarchés, des boulangeries, des épiceries et un bureau de poste à quelques minutes du logement. Le marché Place aux Herbes anime les environs.
Elle est à vendre pour la somme de 317 620 €.
N'hésitez pas à prendre contact avec Arnaud DUTEURTRE (tél : 06-13-43-01-46) pour plus de renseignements sur cette maison.
Annonce proposée par un Agent Commercial Partenaire.
Mentions légales
Terrain proposé par un partenaire foncier selon disponibilités et autorisation de publicité au prix de 99 000 €. Hors droit d'enregistrement et frais de notaire. Maison proposée, avec un contrat de construction de maison individuelle, dans le cadre de la loi du 19/12/1990, au prix de 218 620 € (Hors branchements et raccordements, papiers peints, peintures, revêtement de sol dans les chambres, qui sont chiffrés dans les travaux qui restent à charge du client. Tarif modifiable sans préavis). Étiquette énergie : A. Différents modèles disponibles pour ce terrain. Assurances et garanties du constructeur comprises (RC professionnelle, décennale, dommage ouvrage).Agence Maisons Balency de Coignières (78310)
- Téléphone :
- 01 34 61 42 59
- Adressse :
- Domexpo Ouest
78310 Coignières, France
