Maison neuve à
Dourdan
(91410) Référence :
PM2306524_1
Prix du projet : Maison avec Terrain
prix 273 000 €
- 5 pièces
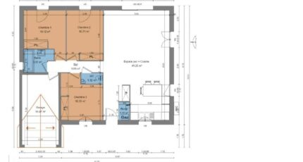
- 3 chambres
- Surface maison 82 m2
Dourdan (91410) pour 273 000 € : Plain-pied de 82 m² constructible sur un Terrain VIABILISÉ de 296 m².
Faites confiance aux Maisons Balency d'Ormoy pour vous bâtir une maison de 3 chambres sur un terrain long de 22 mètres !
Situé dans un environnement calme et résidentiel, il bénéficie d'un accès rapide aux commodités : écoles, collège Condorcet et lycée Francisque Sarcey à quelques minutes, commerces du centre-ville et marché à proximité, ainsi que la gare RER C de Dourdan permettant de rejoindre Paris en moins d'une heure. Les axes N20 et A10 sont aisément accessibles pour vos déplacements quotidiens.
Maisons Balency, du Groupe Hexaôm - 1er constructeur de maisons individuelles en France - vous accompagne dans la conception de votre projet, qu'il s'agisse d'un modèle sur catalogue ou d'une création sur mesure. Toutes nos réalisations respectent les dernières normes environnementales RE2020 pour un confort durable et des performances énergétiques optimales.
Maisons BALENCY - Agence d'Ormoy
23 chemin de Tournenfils - 91540 ORMOY
09 67 70 15 81
Annonce proposée par un Agent Commercial Partenaire.
Mentions légales
Terrain proposé par un partenaire foncier selon disponibilités et autorisation de publicité au prix de 128 000 €. Hors droit d'enregistrement et frais de notaire. Maison proposée, avec un contrat de construction de maison individuelle, dans le cadre de la loi du 19/12/1990, au prix de 145 000 € (Hors branchements et raccordements, papiers peints, peintures, revêtement de sol dans les chambres, qui sont chiffrés dans les travaux qui restent à charge du client. Tarif modifiable sans préavis). Étiquette énergie : A. Différents modèles disponibles pour ce terrain. Assurances et garanties du constructeur comprises (RC professionnelle, décennale, dommage ouvrage).Agence Maisons Balency de Ormoy (91540)
- Téléphone :
- 09 67 70 15 81
- Adressse :
- 23 chemin de Tournenfils - 1er étage
91540 Ormoy, France
