Maison neuve à
Douville-sur-Andelle (27380) Référence : KXA2335669_3

Prix du projet : Maison avec Terrain

prix 189 000 €

  • 5 pièces
  • 3 chambres
  • Surface maison 76 m2

VENTE d'une maison F5 (76 m²) à Douville-sur-Andelle
MAISON 5 PIÈCES NEUVE - PROCHE DE ROUEN
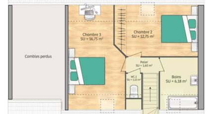
À quelques kilomètres de Rouen, découvrez en vente à Douville-sur-Andelle (27380), cette maison de 5 pièces de 76 m² et de 510 m² de terrain. Son intérieur propose trois chambres, une cuisine et une salle de bains.
Il s'agit d'une maison de 2 niveaux. Elle est neuve.
On trouve une école maternelle dans le quartier. Niveau transports, il y a la gare Val-de-Reuil à moins de 10 minutes en voiture. Les autoroutes A13 et A154 et les nationales N28 et N138 sont accessibles à moins de 20 km. On trouve une boucherie-charcuterie dans les environs.
Son prix de vente est de 189 000 €.
Contactez Kévin XAVIER ALVES (tél : 06-58-91-13-87) pour obtenir de plus amples renseignements sur cette maison.

Annonce proposée par un Agent Commercial Partenaire.

Mentions légales

Terrain proposé par un partenaire foncier selon disponibilités et autorisation de publicité au prix de 30 000 €. Hors droit d'enregistrement et frais de notaire. Terrain + Maison proposés au prix de 159 000 € (Hors branchements et raccordements, papiers peints, peintures, revêtement de sol dans les chambres. Tarif modifiable sans préavis). Etiquette énergie : A. Différents modèles disponibles pour ce terrain. Assurances et garanties du constructeur (RC professionnelle, décennale, dommage ouvrage, garantie de remboursement de l'acompte, livraison à prix et délai convenu) : https://www.maisons-balency.fr/informations-legales/. HEXAOM Services est enregistré auprès de l'ORIAS en tant que Courtier en financement, Niveau 1, sous le numéro 14001345.

Contactez l'agence de Boos

02 35 80 66 66

    * Champs obligatoires

    Vos informations sont traitées par HEXAOM et transmises à un conseiller commercial qui vous contactera afin de répondre à votre demande. Les plans et images présentés sur notre site sont la propriété d’HEXAOM et ne peuvent pas être reproduits sans son accord. Pour retrouver notre politique de protection des données personnelles et exercer vos droits conformément à la « loi informatique et liberté » cliquez-ici.