Maison neuve à
Douvres-la-Délivrande
(14440) Référence :
SU2385606_2
Prix du projet : Maison avec Terrain
prix 399 900 €
- 6 pièces
- 4 chambres
- Surface maison 90 m2
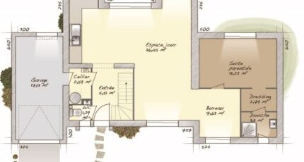
Maison de 6 pièces (90 m²) à vendre à Douvres-la-Délivrande
ENTRE TERRE ET MER - MAISON 6 PIÈCES NEUVE
À vendre : localisée à deux pas des plages de la Côte de Nacre, et à seulement 12 kilomètres du centre-ville de Caen, à Douvres-la-Délivrande (14440), venez découvrir cette maison de 6 pièces de 90 m² et de 560 m² de terrain. Elle inclut quatre chambres, une cuisine et deux salles de bains.
Il s'agit d'une maison de 2 niveaux. Elle est à construire.
Vous trouverez à proximité immédiate : commerces, écoles et supermarché.
De nombreuses activités socio-culturelles sont proposées par la commune tout au long de l'année.
Son prix de vente est de 399 900 €.
Prenez contact avec Sophie UCENDO (06-35-39-35-17) pour toute information sur cette maison, sur les modalités de vente ou sur les démarches à suivre. Donnez vie à vos projets immobiliers avec Maisons Balency Caen.
Mentions légales
Terrain proposé par un partenaire foncier selon disponibilités et autorisation de publicité au prix de 149 000 €. Hors droit d'enregistrement et frais de notaire. Terrain + Maison proposés au prix de 250 900 € (Hors branchements et raccordements, papiers peints, peintures, revêtement de sol dans les chambres. Tarif modifiable sans préavis). Etiquette énergie : A. Différents modèles disponibles pour ce terrain. Assurances et garanties du constructeur (RC professionnelle, décennale, dommage ouvrage, garantie de remboursement de l'acompte, livraison à prix et délai convenu) : https://www.maisons-balency.fr/informations-legales/. HEXAOM Services est enregistré auprès de l'ORIAS en tant que Courtier en financement, Niveau 1, sous le numéro 14001345.Agence Maisons Balency de Caen (14000)
- Téléphone :
- 02 31 50 38 15
- Adressse :
- 133, rue Saint Jean
14000 Caen, France
