Maison neuve à
Douvres-la-Délivrande
(14440) Référence :
SU2385606_5
Prix du projet : Maison avec Terrain
prix 409 900 €
- 5 pièces
- 3 chambres
- Surface maison 120 m2
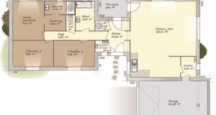
VENTE d'une maison de 5 pièces (120 m²) à Douvres-la-Délivrande
MAISON 5 PIÈCES NEUVE - ENTRE TERRE ET MER
À deux pas des plages de la Côte de Nacre, et à seulement 12 kilomètres du centre-ville de Caen, nous vous proposons à vendre à Douvres-la-Délivrande (14440), cette maison de 5 pièces de plain-pied de 120 m².
Elle offre trois chambres, une cuisine et deux salles de bains. La maison est à construire.
Le terrain de la propriété s'étend sur 560 m².
Vous trouverez à proximité immédiate : commerces, écoles et supermarché.
De nombreuses activités socio-culturelles sont proposées par la commune tout au long de l'année.
Commune desservie par les transports scolaires.
Elle est proposée à l'achat pour 409 900 €.
Contactez Sophie UCENDO (06-35-39-35-17) pour plus de renseignements sur cette maison, sur les démarches à suivre et sur les modalités de vente. Maisons Balency Caen vous accompagne dans tous vos projets immobiliers et à toutes les étapes de l'achat.
Mentions légales
Terrain proposé par un partenaire foncier selon disponibilités et autorisation de publicité au prix de 149 000 €. Hors droit d'enregistrement et frais de notaire. Terrain + Maison proposés au prix de 260 900 € (Hors branchements et raccordements, papiers peints, peintures, revêtement de sol dans les chambres. Tarif modifiable sans préavis). Etiquette énergie : A. Différents modèles disponibles pour ce terrain. Assurances et garanties du constructeur (RC professionnelle, décennale, dommage ouvrage, garantie de remboursement de l'acompte, livraison à prix et délai convenu) : https://www.maisons-balency.fr/informations-legales/. HEXAOM Services est enregistré auprès de l'ORIAS en tant que Courtier en financement, Niveau 1, sous le numéro 14001345.Agence Maisons Balency de Caen (14000)
- Téléphone :
- 02 31 50 38 15
- Adressse :
- 133, rue Saint Jean
14000 Caen, France
