Maison neuve à
Draveil
(91210) Référence :
JJP2300409_1
Prix du projet : Maison avec Terrain
prix 789 320 €
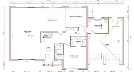
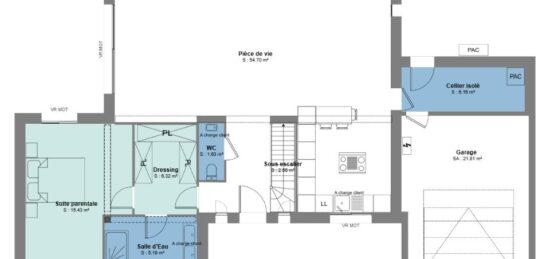
- 7 pièces
- 6 chambres
- Surface maison 200 m2
Maison neuve contemporaine de type F7 (200 m²) à vendre à Soisy sur seine
QUARTIER RECHERCHÉ - MAISON d'exception 7 PIÈCES NEUVE
À proximité de toutes les commodités de Draveil et Soisy sur seine
Son intérieur inclut six chambres, ou 5 chambres + Bureau, Une magnifique pièce de vie de plus de 62 m² éclairée par de larges baies vitrées orientées Est /Ouest
En rez de chaussée vous trouverez également une suite parentale et un bureau, une entrée cathédrale, un garage double, puis a l'étage 4 chambres d'environ 15 m2 habitable et deux salles de bains supplémentaires.
Cette propriété est située dans un quartier convoité.
Son prix de vente est de 789 320€. ( hors frais de notaires prévoir env 21 000 €), hors décoration, revêtements et adaptations aux sols éventuelles), branchements raccordements, enlèvements des terres compris
Tous nos plans sont personnalisables sur mesure
Maison à très basse consommation, Réalisation en brique de terre cuite, isolation intérieure renforcée bio ressourcée, pompe à chaleur, plancher chauffant, domotique... toutes assurances comprises " dommage ouvrage"..., Frais d'architecte inclus
Contactez votre conseiller Jean Jacques des maisons BALENCY agence de la ville du bois au 07 77 16 46 73 ou au 01 64 49 21 13
(Réalisation sur Mesure exclusive des Maisons Balency agence de La ville du Bois Domexpo Sud )
Mentions légales
Terrain proposé par un partenaire foncier selon disponibilités et autorisation de publicité au prix de 300 000 €. Hors droit d'enregistrement et frais de notaire. Maison proposée, avec un contrat de construction de maison individuelle, dans le cadre de la loi du 19/12/1990, au prix de 489 320 € (Hors branchements et raccordements, papiers peints, peintures, revêtement de sol dans les chambres, qui sont chiffrés dans les travaux qui restent à charge du client. Tarif modifiable sans préavis). Étiquette énergie : A. Différents modèles disponibles pour ce terrain. Assurances et garanties du constructeur comprises (RC professionnelle, décennale, dommage ouvrage).Agence Maisons Balency de La Ville-du-Bois (91620)
- Téléphone :
- 01 64 49 21 13
- Adressse :
- Domexpo Sud - RN20
91620 La Ville-du-Bois, France
