Maison neuve à
Dreux (28100) Référence : KD2375874_1

Prix du projet : Maison avec Terrain

prix 346 410 €

  • 5 pièces
  • 3 chambres
  • Surface maison 120 m2

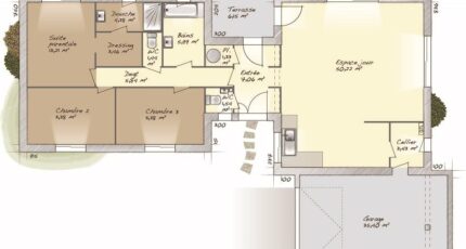
Dreux : maison F5 (120 m²) à vendre
MAISON 5 PIÈCES NEUVE
À deux pas du Transilien N (60 min de Paris), notre agence Maisons Balency Gravigny est ravie de vous proposer cette maison de 5 pièces de plain-pied de 120 m² à vendre à Dreux (28100). Conçue de plain-pied, elle dispose de trois chambres, d'une cuisine et de deux salles de bains.
Le terrain de la propriété est de 536 m².
La maison est neuve.
Des écoles du primaire et du secondaire sont implantées à moins de 10 minutes à pied. Niveau transports en commun, il y a la gare Dreux dans les environs. Les nationales N12 et N154 sont accessibles à moins de 2 km. On trouve un tennis, des commerces, des boulangeries, un supermarché, des boucheries-charcuteries et deux poissonneries à quelques minutes. 4 marchés animent le quartier.
Son prix de vente est de 346 410 €.
Prenez contact avec Karen DELELIS (tél : 07-49-97-72-93) pour toute information sur la maison ou sur les modalités de vente. Maisons Balency Gravigny est là pour vous accompagner dans toutes vos démarches.

Annonce proposée par un Agent Commercial Partenaire.

Mentions légales

Terrain proposé par un partenaire foncier selon disponibilités et autorisation de publicité au prix de 75 000 €. Hors droit d'enregistrement et frais de notaire. Terrain + Maison proposés au prix de 346 410 € (Hors branchements et raccordements, papiers peints, peintures, revêtement de sol dans les chambres. Tarif modifiable sans préavis). Etiquette énergie : A. Différents modèles disponibles pour ce terrain. Assurances et garanties du constructeur (RC professionnelle, décennale, dommage ouvrage, garantie de remboursement de l'acompte, livraison à prix et délai convenu) : https://www.maisons-balency.fr/informations-legales/. HEXAOM Services est enregistré auprès de l'ORIAS en tant que Courtier en financement, Niveau 1, sous le numéro 14001345.

Contactez l'agence de Gravigny

02 32 51 49 29

    * Champs obligatoires

    Vos informations sont traitées par HEXAOM et transmises à un conseiller commercial qui vous contactera afin de répondre à votre demande. Les plans et images présentés sur notre site sont la propriété d’HEXAOM et ne peuvent pas être reproduits sans son accord. Pour retrouver notre politique de protection des données personnelles et exercer vos droits conformément à la « loi informatique et liberté » cliquez-ici.