Maison neuve à
Eaubonne
(95600) Référence :
CM2334076_2
Prix du projet : Maison avec Terrain
prix 479 000 €
- 5 pièces
- 3 chambres
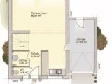
- Surface maison 90 m2
Maison de 5 pièces (90 m²) en vente à Eaubonne
MAISON 5 PIÈCES NEUVE
À vendre : au pied de la gare d'Ermont Halte (Paris à 20 min par le Transilien H), laissez vous charmer par à Eaubonne (95600), cette maison de 5 pièces de 90 m² et de 242 m² de terrain. Son intérieur inclut trois chambres, une cuisine et une salle de bains.
Cette maison comporte 2 niveaux. Elle est neuve.
Il y a des écoles de tous types (de la maternelle au lycée) à moins de 10 minutes à pied, tout comme deux structures d'accueil pour les enfants en bas âge. Côté transports en commun, on trouve les lignes de RER C et D ainsi que 50 gares à moins de 10 minutes en voiture. Il y a un tennis, des commerces, des boulangeries, deux supermarchés, deux bureaux de poste et des boucheries-charcuteries dans les environs. Le marché Centre-Ville anime le quartier.
Elle est à vendre pour la somme de 479 000 €.
Prenez contact avec Christophe MONTANIER (tél : 06-10-23-51-22) pour toute question sur cette maison ou sur les démarches à suivre. Maisons Balency Saint-Maur-des-Fossés est là pour vous accompagner dans tous vos projets immobiliers.
Annonce proposée par un Agent Commercial Partenaire.
Mentions légales
Terrain proposé par un partenaire foncier selon disponibilités et autorisation de publicité au prix de 250 000 €. Hors droit d'enregistrement et frais de notaire. Terrain + Maison proposés au prix de 229 000 € (Hors branchements et raccordements, papiers peints, peintures, revêtement de sol dans les chambres. Tarif modifiable sans préavis). Etiquette énergie : A. Différents modèles disponibles pour ce terrain. Assurances et garanties du constructeur (RC professionnelle, décennale, dommage ouvrage, garantie de remboursement de l'acompte, livraison à prix et délai convenu) : https://www.maisons-balency.fr/informations-legales/. HEXAOM Services est enregistré auprès de l'ORIAS en tant que Courtier en financement, Niveau 1, sous le numéro 14001345.Agence Maisons Balency de Saint-Maur-des-Fossés (94100)
- Téléphone :
- 01 87 36 85 37
- Adressse :
- 12 avenue de la république
94100 Saint-Maur-des-Fossés, France
