Maison neuve à
Écardenville-sur-Eure (27490) Référence : SH2304695_2

Prix du projet : Maison avec Terrain

prix 315 000 €

  • 4 pièces
  • 3 chambres
  • Surface maison 120 m2

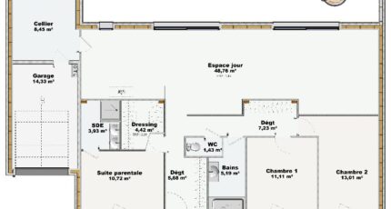
Maison T4 (120 m²) en vente à Écardenville-sur-Eure
EMPLACEMENT PRIVILÉGIÉ - MAISON 4 PIÈCES NEUVE
À vendre : située à deux pas d'Évreux, nous sommes heureux de vous présenter cette maison de 4 pièces de plain-pied de 120 m² et de 850 m² de terrain bénéficiant d'un emplacement d'exception dans Écardenville-sur-Eure (27490).
Son intérieur comporte trois chambres, une cuisine et deux salles de bains. La maison est neuve.
La maison est située dans un quartier attractif. Il y a l'École Élémentaire Ecardenville Sur Eure à moins de 10 minutes à pied. L'autoroute A13 et la nationale N154 sont accessibles à moins de 8 km.
Elle est proposée à l'achat pour 315 000 €.
Contactez notre agence (HOTTE Sébastien : 06-15-58-21-40) pour toute information sur la maison, sur les démarches à suivre ou sur les modalités de vente. Maisons Balency Louviers est là pour vous accompagner à toutes les étapes de votre projet.

Annonce proposée par un Agent Commercial Partenaire.

Mentions légales

Terrain proposé par un partenaire foncier selon disponibilités et autorisation de publicité au prix de 69 000 €. Hors droit d'enregistrement et frais de notaire. Maison proposée, avec un contrat de construction de maison individuelle, dans le cadre de la loi du 19/12/1990, au prix de 246 000 € (Hors branchements et raccordements, papiers peints, peintures, revêtement de sol dans les chambres, qui sont chiffrés dans les travaux qui restent à charge du client. Tarif modifiable sans préavis). Étiquette énergie : A. Différents modèles disponibles pour ce terrain. Assurances et garanties du constructeur comprises (RC professionnelle, décennale, dommage ouvrage).

Contactez l'agence de Louviers

02 32 51 43 53

    * Champs obligatoires

    Vos informations sont traitées par HEXAOM et transmises à un conseiller commercial qui vous contactera afin de répondre à votre demande. Les plans et images présentés sur notre site sont la propriété d’HEXAOM et ne peuvent pas être reproduits sans son accord. Pour retrouver notre politique de protection des données personnelles et exercer vos droits conformément à la « loi informatique et liberté » cliquez-ici.