Maison neuve à
Écouis (27440) Référence : KG2417332_6

Prix du projet : Maison avec Terrain

prix 376 000 €

  • 7 pièces
  • 4 chambres
  • Surface maison 160 m2

VENTE : maison de 7 pièces (160 m²) à Écouis
MAISON 7 PIÈCES NEUVE - PROCHE DE ROUEN
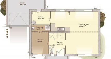
Cette grande propriété à étage de style très contemporain se compose d'une grande pièce de vie centrale, lumineuse avec ses baies coulissantes. Une cuisine ouverte sur séjour accentue l'effet d'espace. Un cellier en arrière cuisine permet d'accéder directement au garage depuis la maison. Vous trouverez également une suite parentale au RDC, un WC indépendant, une entrée avec placards et rangements. A l'étage, 3 autres chambres spacieuses, dont une seconde suite, une salle de bain et un second WC.
N'hésitez pas à prendre contact avec Karen GOHIER (tél : 06 71 52 61 13) des Maisons Balency LOUVIERS pour toute question sur la maison, sur les modalités de vente ou sur les démarches à suivre.

Annonce proposée par un Agent Commercial Partenaire.

Mentions légales

Terrain proposé par un partenaire foncier selon disponibilités et autorisation de publicité au prix de 54 000 €. Hors droit d'enregistrement et frais de notaire. Terrain + Maison proposés au prix de 376 000 € (Hors branchements et raccordements, papiers peints, peintures, revêtement de sol dans les chambres. Tarif modifiable sans préavis). Etiquette énergie : A. Différents modèles disponibles pour ce terrain. Assurances et garanties du constructeur (RC professionnelle, décennale, dommage ouvrage, garantie de remboursement de l'acompte, livraison à prix et délai convenu) : https://www.maisons-balency.fr/informations-legales/. HEXAOM Services est enregistré auprès de l'ORIAS en tant que Courtier en financement, Niveau 1, sous le numéro 14001345.

Contactez l'agence de Louviers

02 32 51 43 53

    * Champs obligatoires

    Vos informations sont traitées par HEXAOM et transmises à un conseiller commercial qui vous contactera afin de répondre à votre demande. Les plans et images présentés sur notre site sont la propriété d’HEXAOM et ne peuvent pas être reproduits sans son accord. Pour retrouver notre politique de protection des données personnelles et exercer vos droits conformément à la « loi informatique et liberté » cliquez-ici.