Maison neuve à
Elbeuf (76500) Référence : SEMA9042_12

Prix du projet : Maison avec Terrain

prix 188 000 €

  • 4 pièces
  • 2 chambres
  • Surface maison 50 m2

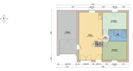
VENTE : maison de 4 pièces (49 m²) à Elbeuf
PROCHE DE ROUEN - MAISON 4 PIÈCES NEUVE
À vendre à 19 km de Rouen, laissez vous charmer par cette maison de 4 pièces de plain-pied de 49 m² et de 800 m² de terrain à Elbeuf (76500). Conçue de plain-pied, elle comporte deux chambres, une cuisine et une salle de bains.
La maison est neuve.
Il y a des établissements scolaires de tous types à moins de 10 minutes à pied, tout comme une crèche. Côté transports en commun, on trouve les gares Elbeuf-Saint-Aubin, Tourville-la-Rivière et Oissel à moins de 10 minutes en voiture. Les autoroutes A13 et A139 et la nationale N138 sont accessibles à moins de 7 km. Il y a un tennis, un bassin de natation, des commerces, des boulangeries, deux supermarchés, des épiceries et des boucheries-charcuteries à quelques minutes à peine. Le marché Place de la République anime les environs tous les samedis matin.
Son prix de vente est de 188 000 €.
Contactez notre agence (Sébastien MASSON : 06-23-38-14-17) pour toute information sur la maison, sur les démarches à suivre ou sur les modalités de vente.

Annonce proposée par un Agent Commercial Partenaire.

Mentions légales

Terrain proposé par un partenaire foncier selon disponibilités et autorisation de publicité au prix de 81 000 €. Hors droit d'enregistrement et frais de notaire. Terrain + Maison proposés au prix de 188 000 € (Hors branchements et raccordements, papiers peints, peintures, revêtement de sol dans les chambres. Tarif modifiable sans préavis). Etiquette énergie : A. Différents modèles disponibles pour ce terrain. Assurances et garanties du constructeur (RC professionnelle, décennale, dommage ouvrage, garantie de remboursement de l'acompte, livraison à prix et délai convenu) : https://www.maisons-balency.fr/informations-legales/. HEXAOM Services est enregistré auprès de l'ORIAS en tant que Courtier en financement, Niveau 1, sous le numéro 14001345.

Contactez l'agence de Boos

02 35 80 66 66

    * Champs obligatoires

    Vos informations sont traitées par HEXAOM et transmises à un conseiller commercial qui vous contactera afin de répondre à votre demande. Les plans et images présentés sur notre site sont la propriété d’HEXAOM et ne peuvent pas être reproduits sans son accord. Pour retrouver notre politique de protection des données personnelles et exercer vos droits conformément à la « loi informatique et liberté » cliquez-ici.