Maison neuve à
Elbeuf (76500) Référence : SEMA9042_7

Prix du projet : Maison avec Terrain

prix 275 000 €

  • 9 pièces
  • 5 chambres
  • Surface maison 124 m2

Elbeuf : maison de 9 pièces (124 m²) à vendre
MAISON 9 PIÈCES NEUVE - PROCHE DE ROUEN
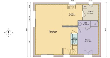
À vendre à 19 km de Rouen, notre agence Maisons Balency Boos est ravie de vous proposer à Elbeuf (76500), cette maison de 9 pièces de 124 m² et de 800 m² de terrain.
Cette maison comporte 2 niveaux. Son intérieur propose cinq chambres, une cuisine et trois salles de bains. La maison est neuve.
Des écoles de tous niveaux sont implantées à moins de 10 minutes à pied, tout comme une structure d'accueil pour les enfants en bas âge. Côté transports, il y a trois gares (Elbeuf-Saint-Aubin, Tourville-la-Rivière et Oissel) à moins de 10 minutes en voiture. Les autoroutes A13 et A139 et la nationale N138 sont accessibles à moins de 7 km. On trouve un tennis, un bassin de natation, des commerces, des boulangeries, deux supermarchés, des épiceries et des boucheries-charcuteries à quelques minutes. Ne manquez pas le marché Place de la République chaque samedi matin.
Elle est proposée à l'achat pour 275 000 €.
Contactez notre agence (MASSON Sébastien : 06-23-38-14-17) pour toute question sur cette maison ou sur les démarches à suivre.

Annonce proposée par un Agent Commercial Partenaire.

Mentions légales

Terrain proposé par un partenaire foncier selon disponibilités et autorisation de publicité au prix de 81 000 €. Hors droit d'enregistrement et frais de notaire. Terrain + Maison proposés au prix de 275 000 € (Hors branchements et raccordements, papiers peints, peintures, revêtement de sol dans les chambres. Tarif modifiable sans préavis). Etiquette énergie : A. Différents modèles disponibles pour ce terrain. Assurances et garanties du constructeur (RC professionnelle, décennale, dommage ouvrage, garantie de remboursement de l'acompte, livraison à prix et délai convenu) : https://www.maisons-balency.fr/informations-legales/. HEXAOM Services est enregistré auprès de l'ORIAS en tant que Courtier en financement, Niveau 1, sous le numéro 14001345.

Contactez l'agence de Boos

02 35 80 66 66

    * Champs obligatoires

    Vos informations sont traitées par HEXAOM et transmises à un conseiller commercial qui vous contactera afin de répondre à votre demande. Les plans et images présentés sur notre site sont la propriété d’HEXAOM et ne peuvent pas être reproduits sans son accord. Pour retrouver notre politique de protection des données personnelles et exercer vos droits conformément à la « loi informatique et liberté » cliquez-ici.