Maison neuve à
Elbeuf (76500) Référence : SEMA9042_8

Prix du projet : Maison avec Terrain

prix 256 000 €

  • 7 pièces
  • 4 chambres
  • Surface maison 91 m2

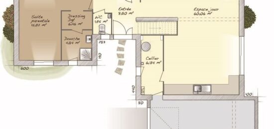
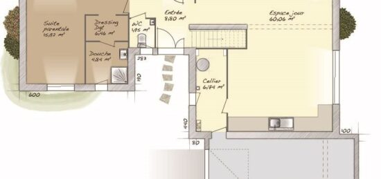
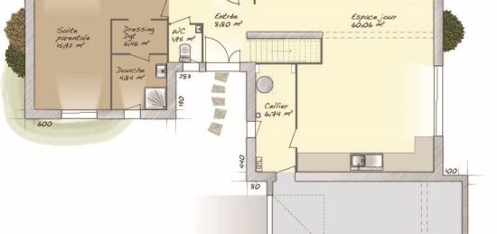
VENTE : maison de 7 pièces (91 m²) à Elbeuf
PROCHE DE ROUEN - MAISON 7 PIÈCES NEUVE
À vendre : à deux pas de Rouen, nous vous proposons à Elbeuf (76500), cette maison de 7 pièces de 91 m² et de 800 m² de terrain.
C'est une maison de 2 niveaux. Son intérieur offre quatre chambres, une cuisine et une salle de bains. La maison est neuve.
Des établissements scolaires du primaire et du secondaire sont implantés à moins de 10 minutes à pied, tout comme une crèche. Niveau transports, on trouve trois gares (Elbeuf-Saint-Aubin, Tourville-la-Rivière et Oissel) à moins de 10 minutes en voiture. Les autoroutes A13 et A139 et la nationale N138 sont accessibles à moins de 7 km. Il y a un tennis, un bassin de natation, des commerces, des boulangeries, deux supermarchés, deux bureaux de poste et des épiceries à quelques minutes. Ne manquez pas le marché Place de la République tous les samedis matin.
Elle est proposée à l'achat pour 256 000 €.
Prenez contact avec notre agence (MASSON Sébastien : 06-23-38-14-17) pour plus d'informations sur cette maison. Concrétisez vos projets immobiliers avec Maisons Balency Boos.

Annonce proposée par un Agent Commercial Partenaire.

Mentions légales

Terrain proposé par un partenaire foncier selon disponibilités et autorisation de publicité au prix de 81 000 €. Hors droit d'enregistrement et frais de notaire. Terrain + Maison proposés au prix de 256 000 € (Hors branchements et raccordements, papiers peints, peintures, revêtement de sol dans les chambres. Tarif modifiable sans préavis). Etiquette énergie : A. Différents modèles disponibles pour ce terrain. Assurances et garanties du constructeur (RC professionnelle, décennale, dommage ouvrage, garantie de remboursement de l'acompte, livraison à prix et délai convenu) : https://www.maisons-balency.fr/informations-legales/. HEXAOM Services est enregistré auprès de l'ORIAS en tant que Courtier en financement, Niveau 1, sous le numéro 14001345.

Contactez l'agence de Boos

02 35 80 66 66

    * Champs obligatoires

    Vos informations sont traitées par HEXAOM et transmises à un conseiller commercial qui vous contactera afin de répondre à votre demande. Les plans et images présentés sur notre site sont la propriété d’HEXAOM et ne peuvent pas être reproduits sans son accord. Pour retrouver notre politique de protection des données personnelles et exercer vos droits conformément à la « loi informatique et liberté » cliquez-ici.