Maison neuve à
Émalleville (27930) Référence : KD2379334_1

Prix du projet : Maison avec Terrain

prix 337 410 €

  • 5 pièces
  • 3 chambres
  • Surface maison 120 m2

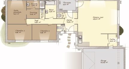
Maison de 5 pièces (120 m²) en vente à Émalleville
MAISON 5 PIÈCES NEUVE - PROCHE D'ÉVREUX
À vendre à quelques kilomètres d'Évreux, laissez vous charmer par à Émalleville (27930), cette maison de 5 pièces de plain-pied de 120 m² et de 1 077 m² de terrain. Conçue de plain-pied, elle comporte trois chambres, une cuisine et deux salles de bains.
La maison est neuve.
On trouve une école maternelle dans le quartier. Niveau transports, il y a la gare Évreux Normandie à moins de 10 minutes en voiture. L'autoroute A154 et les nationales N154 et N13 sont accessibles à moins de 10 km.
Elle est à vendre pour la somme de 337 410 €.
Contactez notre agence (Karen DELELIS : 07-49-97-72-93) pour toute question sur la maison ou sur les modalités de vente.

Annonce proposée par un Agent Commercial Partenaire.

Mentions légales

Terrain proposé par un partenaire foncier selon disponibilités et autorisation de publicité au prix de 66 000 €. Hors droit d'enregistrement et frais de notaire. Terrain + Maison proposés au prix de 337 410 € (Hors branchements et raccordements, papiers peints, peintures, revêtement de sol dans les chambres. Tarif modifiable sans préavis). Etiquette énergie : A. Différents modèles disponibles pour ce terrain. Assurances et garanties du constructeur (RC professionnelle, décennale, dommage ouvrage, garantie de remboursement de l'acompte, livraison à prix et délai convenu) : https://www.maisons-balency.fr/informations-legales/. HEXAOM Services est enregistré auprès de l'ORIAS en tant que Courtier en financement, Niveau 1, sous le numéro 14001345.

Contactez l'agence de Gravigny

02 32 51 49 29

    * Champs obligatoires

    Vos informations sont traitées par HEXAOM et transmises à un conseiller commercial qui vous contactera afin de répondre à votre demande. Les plans et images présentés sur notre site sont la propriété d’HEXAOM et ne peuvent pas être reproduits sans son accord. Pour retrouver notre politique de protection des données personnelles et exercer vos droits conformément à la « loi informatique et liberté » cliquez-ici.