Maison neuve à
Émalleville (27930) Référence : FG2401666_1

Prix du projet : Maison avec Terrain

prix 296 520 €

  • 6 pièces
  • 4 chambres
  • Surface maison 117 m2

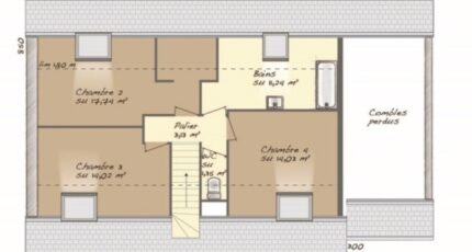
Maison T6 (117 m²) en vente à Émalleville
IDÉALEMENT SITUÉE - 
En vente à deux pas d'Évreux, découvrez, idéalement située dans Émalleville (27930), cette maison de 6 pièces de 117 m² et de 1 600 m² de terrain.
Elle comporte quatre chambres dont une suite parentale, une cuisine ouverte sur l'espace de vie, un cellier donnant sur un garage et deux salles de bains. Cette maison est neuve.

Elle est proposée à l'achat pour 296 520 €.
Contactez Fanny GATINAULT (06-34-03-24-37) pour toute information sur la propriété, sur les modalités de vente ou sur les démarches à suivre.

Annonce proposée par un Agent Commercial Partenaire.

Mentions légales

Terrain proposé par un partenaire foncier selon disponibilités et autorisation de publicité au prix de 80 000 €. Hors droit d'enregistrement et frais de notaire. Terrain + Maison proposés au prix de 296 520 € (Hors branchements et raccordements, papiers peints, peintures, revêtement de sol dans les chambres. Tarif modifiable sans préavis). Etiquette énergie : A. Différents modèles disponibles pour ce terrain. Assurances et garanties du constructeur (RC professionnelle, décennale, dommage ouvrage, garantie de remboursement de l'acompte, livraison à prix et délai convenu) : https://www.maisons-balency.fr/informations-legales/. HEXAOM Services est enregistré auprès de l'ORIAS en tant que Courtier en financement, Niveau 1, sous le numéro 14001345.

Contactez l'agence de Louviers

02 32 51 43 53

    * Champs obligatoires

    Vos informations sont traitées par HEXAOM et transmises à un conseiller commercial qui vous contactera afin de répondre à votre demande. Les plans et images présentés sur notre site sont la propriété d’HEXAOM et ne peuvent pas être reproduits sans son accord. Pour retrouver notre politique de protection des données personnelles et exercer vos droits conformément à la « loi informatique et liberté » cliquez-ici.