Maison neuve à
Émanville (76570) Référence : SEMA9040_7

Prix du projet : Maison avec Terrain

prix 257 000 €

  • 9 pièces
  • 5 chambres
  • Surface maison 124 m2

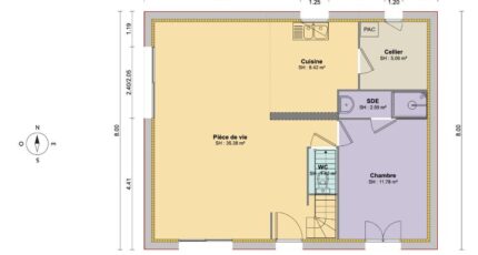
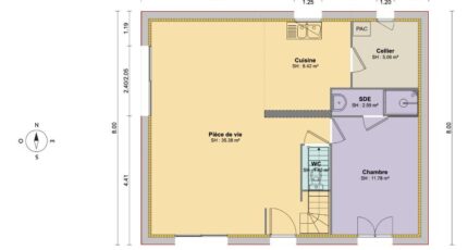
VENTE d'une maison de 9 pièces (124 m²) à Émanville
PROCHE DE ROUEN - MAISON 9 PIÈCES NEUVE
En vente à 36 km de la Manche et à deux pas de Rouen, Maisons Balency Boos vous présente cette maison de 9 pièces de 124 m² et de 800 m² de terrain à Émanville (76570).
Cette maison comporte 2 niveaux. Son intérieur dispose de cinq chambres, d'une cuisine et de trois salles de bains. La maison est neuve.
L'École Primaire des Bleuets est implantée à moins de 10 minutes à pied, tout comme une structure d'accueil pour la petite enfance. Niveau transports, il y a trois gares (Pavilly, Barentin et Motteville) à moins de 10 minutes en voiture. Les autoroutes A151 et A29 et la nationale N27 sont accessibles à moins de 7 km. On trouve un supermarché dans les environs.
Son prix de vente est de 257 000 €.
Prenez contact avec Sébastien MASSON (tél : 06-23-38-14-17) pour tout renseignement sur cette maison. Donnez vie à vos projets immobiliers avec Maisons Balency Boos.

Annonce proposée par un Agent Commercial Partenaire.

Mentions légales

Terrain proposé par un partenaire foncier selon disponibilités et autorisation de publicité au prix de 63 000 €. Hors droit d'enregistrement et frais de notaire. Terrain + Maison proposés au prix de 257 000 € (Hors branchements et raccordements, papiers peints, peintures, revêtement de sol dans les chambres. Tarif modifiable sans préavis). Etiquette énergie : A. Différents modèles disponibles pour ce terrain. Assurances et garanties du constructeur (RC professionnelle, décennale, dommage ouvrage, garantie de remboursement de l'acompte, livraison à prix et délai convenu) : https://www.maisons-balency.fr/informations-legales/. HEXAOM Services est enregistré auprès de l'ORIAS en tant que Courtier en financement, Niveau 1, sous le numéro 14001345.

Contactez l'agence de Boos

02 35 80 66 66

    * Champs obligatoires

    Vos informations sont traitées par HEXAOM et transmises à un conseiller commercial qui vous contactera afin de répondre à votre demande. Les plans et images présentés sur notre site sont la propriété d’HEXAOM et ne peuvent pas être reproduits sans son accord. Pour retrouver notre politique de protection des données personnelles et exercer vos droits conformément à la « loi informatique et liberté » cliquez-ici.