Maison neuve à
Enghien-les-Bains
(95880) Référence :
AD2302213_1
Prix du projet : Maison avec Terrain
prix 728 800 €
- 7 pièces
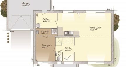
- 4 chambres
- Surface maison 160 m2
VENTE : maison F7 (160 m²) à Enghien-les-Bains
PROCHE DE PARIS - MAISON 7 PIÈCES NEUVE
À vendre : à quelques minutes du Transilien H (15 min de Paris), notre agence Maisons Balency Coignières est heureuse de vous proposer cette maison de 7 pièces de 160 m² et de 220 m² de terrain à Enghien-les-Bains (95880). Elle est composée de quatre chambres, d'une cuisine et de deux salles de bains.
Il s'agit d'une maison de 2 niveaux. Elle est neuve.
Tous les types d'écoles (maternelle, élémentaire et secondaire) se trouvent à moins de 10 minutes à pied. Niveau transports, il y a deux gares (Enghien-les-Bains et La Barre Ormesson) juste à côté. On trouve une bibliothèque, trois bassins de natation, des commerces, des boulangeries, deux supermarchés, des épiceries et des boucheries-charcuteries à proximité du logement. Enfin, le marché Place de Verdun anime les environs.
Elle est à vendre pour la somme de 728 800 €.
Prenez contact avec Arnaud DUTEURTRE (06-13-43-01-46) pour obtenir de plus amples renseignements sur cette propriété ou sur les démarches à suivre. Maisons Balency Coignières vous accompagne dans tous vos projets immobiliers et dans toutes vos démarches.
Annonce proposée par un Agent Commercial Partenaire.
Mentions légales
Terrain proposé par un partenaire foncier selon disponibilités et autorisation de publicité au prix de 360 000 €. Hors droit d'enregistrement et frais de notaire. Maison proposée, avec un contrat de construction de maison individuelle, dans le cadre de la loi du 19/12/1990, au prix de 368 800 € (Hors branchements et raccordements, papiers peints, peintures, revêtement de sol dans les chambres, qui sont chiffrés dans les travaux qui restent à charge du client. Tarif modifiable sans préavis). Étiquette énergie : A. Différents modèles disponibles pour ce terrain. Assurances et garanties du constructeur comprises (RC professionnelle, décennale, dommage ouvrage).Agence Maisons Balency de Coignières (78310)
- Téléphone :
- 01 34 61 42 59
- Adressse :
- Domexpo Ouest
78310 Coignières, France
