Maison neuve à
Éragny
(95610) Référence :
CT2414385_2
Prix du projet : Maison avec Terrain
prix 530 960 €
- 7 pièces
- 4 chambres
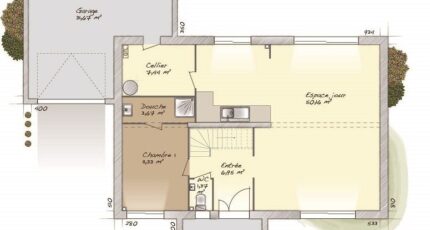
- Surface maison 160 m2
Éragny : maison T7 (160 m²) à vendre
IDÉALEMENT SITUÉE - MAISON 7 PIÈCES NEUVE
Au pied du Transilien J (gare d'Éragny-Neuville, 30 min de Paris), nous sommes heureux de vous proposer en vente, idéalement située dans Éragny (95610), cette maison de 7 pièces de 160 m² et de 770 m² de terrain. Elle offre quatre chambres, une cuisine et deux salles de bains.
Cette maison compte 2 niveaux. Elle est neuve.
La maison se situe dans un secteur attractif. On trouve tous les types d'établissements scolaires (de la maternelle au lycée) à moins de 10 minutes à pied. Niveau transports en commun, il y a la gare Éragny-Neuville à proximité. Il y a une bibliothèque, deux tennis, un bassin de natation, des commerces, des boulangeries, trois supermarchés, des épiceries et un bureau de poste à quelques minutes.
Son prix de vente est de 530 960 €.
Prenez contact avec notre agence (TALAMONI Christophe : 06-49-55-08-27) pour tout renseignement sur la maison, sur les modalités de vente ou sur les démarches à suivre. Maisons Balency Baillet-en-France est là pour vous accompagner à toutes les étapes de l'achat.
Annonce proposée par un Agent Commercial Partenaire.
Mentions légales
Terrain proposé par un partenaire foncier selon disponibilités et autorisation de publicité au prix de 237 000 €. Hors droit d'enregistrement et frais de notaire. Terrain + Maison proposés au prix de 530 960 € (Hors branchements et raccordements, papiers peints, peintures, revêtement de sol dans les chambres. Tarif modifiable sans préavis). Etiquette énergie : A. Différents modèles disponibles pour ce terrain. Assurances et garanties du constructeur (RC professionnelle, décennale, dommage ouvrage, garantie de remboursement de l'acompte, livraison à prix et délai convenu) : https://www.maisons-balency.fr/informations-legales/. HEXAOM Services est enregistré auprès de l'ORIAS en tant que Courtier en financement, Niveau 1, sous le numéro 14001345.Agence Maisons Balency de Baillet-en-France (95560)
- Téléphone :
- 01 34 46 05 23
- Adressse :
- 81 rue de Paris
95560 Baillet-en-France, France
