Maison neuve à
Éragny
(95610) Référence :
CT2414385_3
Prix du projet : Maison avec Terrain
prix 560 000 €
- 9 pièces
- 4 chambres
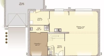
- Surface maison 186 m2
VENTE : maison T9 (186 m²) à Éragny
IDÉALEMENT SITUÉE - MAISON 9 PIÈCES NEUVE
À vendre : à proximité du Transilien J (gare d'Éragny-Neuville, 30 min de Paris), notre agence Maisons Balency Baillet-en-France est heureuse de vous proposer cette maison de 9 pièces de 186 m² idéalement située dans Éragny (95610). Son intérieur dispose de quatre chambres, d'une cuisine et de deux salles de bains.
Le terrain de la maison s'étend sur 770 m².
Il s'agit d'une maison de 2 niveaux. Elle est neuve.
Cette maison est située dans un secteur convoité. Il y a des établissements scolaires de tous types (de la maternelle au lycée) à moins de 10 minutes à pied. Côté transports en commun, on trouve la gare Éragny-Neuville à quelques pas de la maison. On trouve une bibliothèque, deux tennis, un bassin de natation, des commerces, des boulangeries, trois supermarchés, des boucheries-charcuteries et des épiceries dans les environs.
Son prix de vente est de 560 000 €.
Contactez Christophe TALAMONI (tél : 06-49-55-08-27) pour tout renseignement sur la maison.
Annonce proposée par un Agent Commercial Partenaire.
Mentions légales
Terrain proposé par un partenaire foncier selon disponibilités et autorisation de publicité au prix de 237 000 €. Hors droit d'enregistrement et frais de notaire. Terrain + Maison proposés au prix de 560 000 € (Hors branchements et raccordements, papiers peints, peintures, revêtement de sol dans les chambres. Tarif modifiable sans préavis). Etiquette énergie : A. Différents modèles disponibles pour ce terrain. Assurances et garanties du constructeur (RC professionnelle, décennale, dommage ouvrage, garantie de remboursement de l'acompte, livraison à prix et délai convenu) : https://www.maisons-balency.fr/informations-legales/. HEXAOM Services est enregistré auprès de l'ORIAS en tant que Courtier en financement, Niveau 1, sous le numéro 14001345.Agence Maisons Balency de Baillet-en-France (95560)
- Téléphone :
- 01 34 46 05 23
- Adressse :
- 81 rue de Paris
95560 Baillet-en-France, France
